
Novità editoriale del Gruppo EPC dedicata all'interior design utile per una corretta progettazione degli ambienti.
I primi due volumi "La stanza da bagno" e "La zona notte" corredati da Cd Rom, ricchi di immagini a colori, schede tecniche, componenti d'arredo e progetti, acquistabili comodamente online.
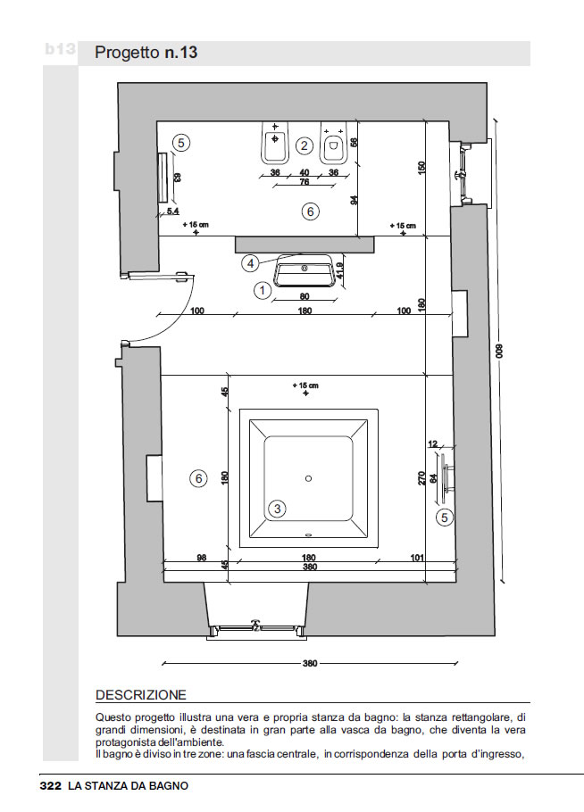
Cliccare sulle immagini per ingrandirle
La stanza da bagno libro con CD ROM
Componenti, progetti e schede tecniche a colori di prodotti e materiali anche sul cd rom allegato.
Elisabetta Bersani, Gian Piero Boveri, Giulia Battiston, Eleonora Persi
Una guida pratica completa per avere tutti gli strumenti necessari per la progettazione di una sala da bagno. Un'operazione tutt'altro che semplice dal momento che bisogna non solo tenere conto delle necessarie nozioni tecniche e normative, che sono alla base di una realizzazione corretta, ma coordinare il tutto con le esigenze, non meno importanti, dell'utente che ha commissionato il lavoro. Il volume, partendo da un'analisi storica, affronta i diversi aspetti e le problematiche legate ai singoli componenti che caratterizzano l'ambiente bagno. Ad un quadro normativo essenziale e sistematico, si affianca una ricerca di prodotti e materiali presenti sul mercato, organizzati in schede tecniche a colori che ne illustrano qualità e dettagli. La sezione conclusiva descrive e sintetizza tutti gli aspetti precedentemente trattati in alcune soluzioni progettuali composte da un disegno tecnico abbinato alle specifiche di sanitari, rivestimenti e complementi scelti.
Allegato al volume un Cd Rom volto a fornire al lettore un archivio di prodotti e progetti che sia di supporto alla progettazione. Esso contiene tutti i materiali presenti nella pubblicazione e molti altri ancora, con immagini, schede tecniche, disegni e esempi progettuali in formato dwg.
Indice Premessa - Analisi storica – Normativa - Elementi che compongono il bagno – Serramenti e rivestimenti - Il progetto della stanza da bagno - Aziende produttrici - Bibliografia - Ringraziamenti
edizione: giugno 2010 | pagine: 336 circa
formato: 150x210 mm | ISBN: 978-88-6310-247-5
SCARICA L'ANTEPRIMA DEL LIBRO (31 pagg) formato pdf - 4 MB
con lo sconto del 10% al prezzo di €31.50 anzichè €35.00
La zona notte libro con CD ROM
Componenti, progetti e schede tecniche a colori di prodotti e materiali anche sul cd rom allegato.
Elisabetta Bersani, Gian Piero Boveri, Giulia Battiston, Eleonora Persi
Una guida dettagliata alla progettazione della zona notte. Un'area particolarmente importante per la vita di tutti i giorni ma che ha bisogno proprio per questo di una particolare attenzione da parte dei professionisti impegnati nella sua realizzazione. Il volume offre tutti gli strumenti necessari per una corretta progettazione, dalla normativa in vigore agli elementi che compongono la zone notte. Alle porzioni progettuali della stanza e ad ogni comparto sono abbinate alcune schede tecniche in riferimento al tipo di arredo, al radiatore, all'illuminazione e al rivestimento. Un testo dal taglio squisitamente pratico che viene incontro alle esigenze dei progettisti e che propone, fra l'altro, anche la descrizione dei prodotti presenti sul mercato, illustrati nelle schede tecniche e in quelle di progetto, grazie alla collaborazione offerta dalle Aziende, dagli Artigiani e dai Professionisti. Le tematiche affrontate sono poi suddivise con uno schema logico che consente una lettura dinamica delle singole parti. Non meno importante, dal punto di vista operativo, il cd rom allegato al volume, in cui sono inseriti tutti i materiali presenti nella pubblicazione, allo scopo di fornire al lettore un archivio di prodotti e progetti che sia di supporto alla progettazione. Attraverso un semplice sistema di navigazione, cliccando su ognuna delle voci indicate si accede ad una pagina riassuntiva che riporta il nome del prodotto, il produttore e un'immagine di anteprima. Esso contiene tutti i materiali presenti nella pubblicazione e molti altri ancora, con immagini, schede tecniche, disegni ed esempi progettuali in formato dwg.
Indice Premessa - Analisi storica della zona notte – Normativa - Elementi che compongono la zona notte - Finiture e rivestimenti - Il progetto della zona notte - Aziende produttrici - Bibliografia - Ringraziamenti
edizione: ottobre 2010 | pagine: 430 circa
formato: 170x240 mm | ISBN: 978-88-6310-286-4

