
Memoria de los autores
La casa reconoce el sitio de emplazamiento en una reserva natural y trata de erigirse en mirador, espectador, anclado en el escarpado, montaña con visuales a las serranías cubiertas de molles que encierran un pequeño valle abajo y una apertura lejana al lago de Río Ceballos (Córdoba, Argentina) y la planicie del aeropuerto de Pajas Blancas en el remoto confín visual.
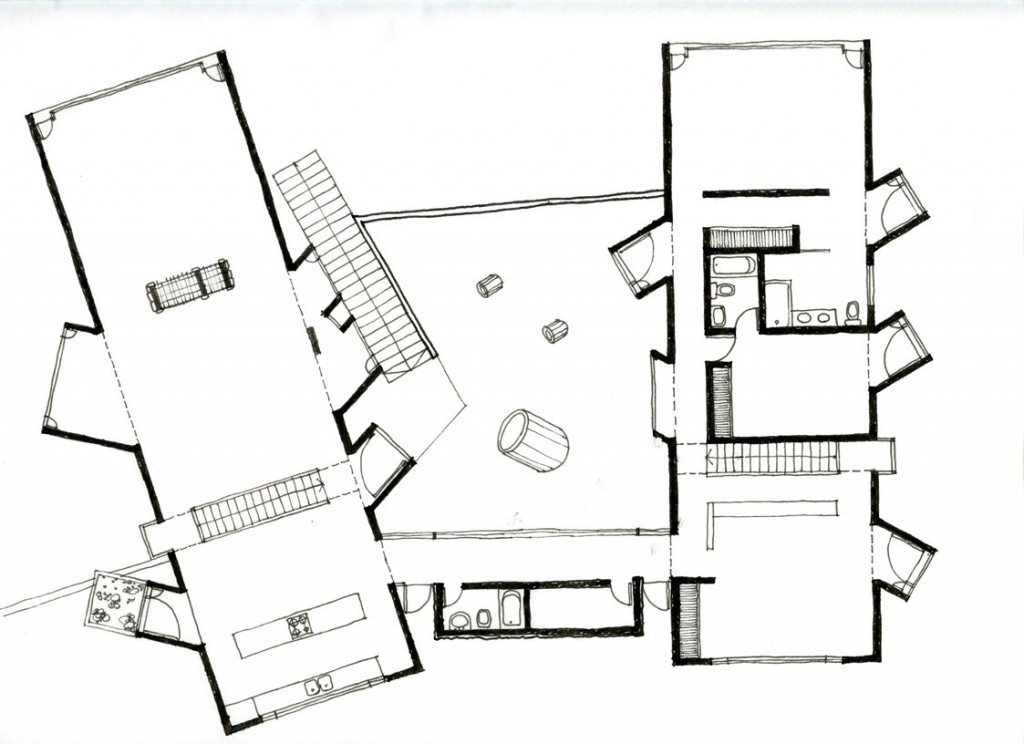
Esta particularidad va a generar ventanas catalejos mirando al norte, este y oeste enclavando la masa de la casa en la ladera, hacia el sur.
Estas ventanas catalejos abren ventanas hacia el valle, abajo y, hacia la geografía de montes a los costados. Emergen de dos potentes tubos que articulan las partes públicas una y, las privadas el otro, definiendo un patio entre ellos, terraza interior descubierta, abierta al paisaje global.
La casa se apoya en la gran masa de un espacio único de trabajo-taller, colección de motos, cochera y acceso inferior.
La zona de colección aparece iluminada cenitalmente con tubos cilíndricos desde la terraza.
Los niveles se articulan por dos escaleras.
Arquitecto: Miguel Ángel Roca
Ubicación: Colachanga, Río Ceballos, Córdoba, Argentina
Año de Proyecto: 2006
Año de Realización: 2008-2011
Superficie Cubierta: 490 m²
Imágenes > Miguel Ángel Roca
Links
Miguel Ángel Roca