
Memoria del autor
Casa Alamos
Un terreno plano de poco más de 900 m2 en un nuevo loteo al norte de Pinamar (Ciudad balnearia de la costa Argentina). Una vivienda unifamiliar de uso permanente construida en un terreno en esquina. Un barrio donde la densidad de construcción no supera las dos casas por manzana. Vivir, sentir, transitar, crecer, disfrutar y descansar son algunas de las acciones que definieron la toma de partido de la casa.
Presencia y Ausencia
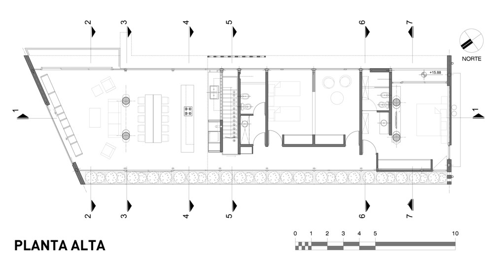
La vivienda se eleva del suelo dejando su huella, permitiendo fluir el paisaje de pinos a la vez que crea un circuito para que la vida suceda. Perros que ladran y niñas que corren, pedalean y gritan bajo la casa que flota sobre el terreno, liberando el 94% de la superficie del lote. En planta baja, una caja cerrada (solo abierta en el perímetro superior -50cms antes de que los cerramientos lleguen a la losa-) ayuda a la liberación del suelo bajo la casa. Un compartimento estanco, sin vistas peatonales al exterior. Acceso, servicios, parque, parrilla y lugar para reuniones y esparcimiento: todo en planta baja. Al subir,el paisaje de pinos comienza a sospecharse a través de las rajas horizontales y una vez en planta alta, la casa se abre como un mirador al entorno boscoso carente de vecinos. Ésta es una planta simple: la zona pública se encuentra abierta en los laterales y como remate hacia la esquina un tabique cuelga con una abertura, un recorte que encuadra el bosque frente a la casa. Subiendo, hacia el centro del lote, la zona de refugio: el dormitorio principal y un dormitorio con cerramiento flexible que permite utilizarlo la mayor parte del año como dormitorio y sala de juegos para la niñas mientras que los días en que hay visitas, se deslizan paneles corredizos para dividir el espacio y generar una segunda habitación.
Estructura
“La arquitectura es básicamente, desafiar la ley de gravedad, eliminar apoyos, equilibrar. El resto es confort, un poco de confort por aquí, un poco de confort por allí.” Artigas Rosa – Vilanova Artigas. Lejos de ser una decisión superflua o banal, hacer que la casa flote sobre el terreno es la acción que da sentido al proyecto. Liberar el cero. Para eso la arquitectura es sencilla, al menos de aspecto simple. Dos pares de columnas inclinadas y unos pocos tabiques trasladan las cargas estructurales al terreno de arena. Las columnas inclinadas reciben las cargas de dos vigas cortas, las cuales a la vez toman las cargas de otras dos vigas largas de las que cuelgan los tensores que soportan la losa/piso de planta alta (cubierta de planta baja). Sobre la losa superior las grandes (altura, espesor) vigas cortas –lejos de ser un oxímoron- se despegan de la losa de cubierta, permitiendo el paso rápido de las aguas de lluvia bajo ellas.
La luz
Todos los días, durante todo el año, con intensidades diferentes, variando el horario y la estación, las sombras proyectadas desde la pantalla colgante de hormigón al este, desde los parasoles y su vegetación al oeste, por las perforaciones circulares de la chapa en planta baja o por el pliegue de la losa de cubierta sobre el comedor, se deslizan en el interior modificando la percepción del espacio, generando climas y situaciones que rompen la rutina. No todos los días son iguales, y no cualquier momento del dia es igual a otro. Asimismo, la presencia de las columnas inclinadas y un espacio de aire bajo los voladizos crea luz y sombra a la vez que ofrece un aire fresco en verano.
Climas
La costa Argentina presenta variaciones de temperatura entre invierno y verano de 40 grados. Inviernos de -5 grados y veranos de +35 grados son habituales. Es por esto que las viviendas de uso permanente necesariamente deben brindar confort térmico durante todo el año. Álamos fue construida con tabiques de hormigon cuya alma es una placa de poliestireno expandido. Esta simple acción disminuye la perdida térmica entre interior-exterior además de reducir a cero la posibilidad de condensación por diferencia de temperatura entre las caras de los tabiques. Además de la aislación hidrófuga necesaria, la losa de cubierta se cargó con hormigón celular. Al oeste, el frente vidriado permite amplias vistas al bosque. Esta fachada cuenta con un bosque propio: sobre un camino técnico de 80 cms de ancho, se colocaron diferentes especies de plantas a modo de cortina verde, generando sombras y brindando privacidad al interior a la vez que funciona como una cámara de aire aislante. Sobre el borde, los parasoles -diseñados y fabricados especialmente para la casa- quiebran vistas a la vez que unifican y protegen.
Materialidad
Casa Álamos se define por liberar el cero maximizando el uso del terreno y por su materialidad: el contraste entre el hormigon y su acabado perfecto (para quienes consideran que en el defecto esta la gracia, la huella del proceso), la textura de las paredes enduidas interiores, la calidez de la madera, la perfeccion de las superficies horizontales, las mesadas en madera y mármoles en contraposición con el piso alisado. Minimizar el costo de mantenimiento, se mide en dinero o energía/tiempo de los usuarios. Dado que ninguna de las dos cosas abunda, la casa se proyecto para reducir el costo de mantenimiento: estructuras de hormigón armado visto y pisos industriales de cemento alisado. Asimismo, el cerramiento de la caja en planta baja se planteó como un tabique liviano, placa de roca yeso como acabado interior, chapa acanalada galvanizada en el exterior y en el centro cámara de aire con lana de vidrio. En casa Álamos no se usaron maderas de ningún tipo para revestimiento y aberturas exteriores. Los parasoles son de hierro galvanizado mientras que las barandas y cercos confinan partes galvanizadas con hierro protegido con pintura anti oxido.
Forma
La casa no ha de tener forma de chalet ni de dúplex, sino que debe contener aquellos elementos que permitan comer, dormir, correr, jugar, leer, escuchar música, reunirse con amigos. El resto es cuento o memoria descriptiva. “… Pues no son la paredes, ni el techo, ni el piso lo que individualiza una casa sino los seres que la viven con sus conversaciones, sus risas, con sus amores y odios, seres que impregnan la casa de algo inmaterial pero profundo, de algo tan poco material como es la sonrisa de un rostro…” , aunque sea mediante objetos físicos como alfombras, libros o colores. Pues los cuadros que vemos sobre las paredes, los colores con que han sido pintadas puertas y ventanas, el diseño de las alfombras, las flores que encontramos en los cuartos, los discos y los libros, aunque objetos materiales (como tambien pertenecen a la carne, los labios y las cejas), son, sin embrago, manifestaciones del alma, ya que el alma no puede manifestarse a nuestros ojos materiales sino por medio de la materia, y eso es una precariedad del alma pero también una curiosa sutileza.” Sobre Héroes y Tumbas – E. Sábato
Imágenes gentileza > Estudio Galera Arquitectura / Fotografia > Federico Cairoli
pubblicato in data: 18/05/2016























