
Memoria de los autores
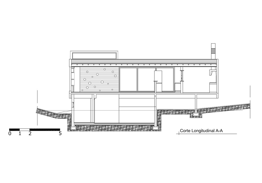
La casa Kaprys es una residencia de descanso proyectada para ser utilizada tanto en verano como en invierno. La misma fue implantada en la cima de un médano, dentro de un entorno boscoso, en Cariló, una ciudad balnearia ubicada a 400 kilómetros de Buenos Aires. La vivienda, fue pensada como un mirador ¨volando¨ en el bosque, se apoya en dos tabiques y unas pocas columnas. La casa se separa del terreno dejando una planta baja libre desde donde se accede al interior. El programa se desarrolla en un único nivel tomando la forma de ¨L¨ en su tipologia. Al frente, volando sobre el terreno, se encuentran el estar, comedor, cocina y una terraza-quincho cubierta. De esta forma, las áreas sociales logran una visión al bosque de 360 grados. Perpendicular a la calle, hacia el interior del lote, la caja privada – con salida al exterior a nivel de terreno- alberga los dormitorios. A nivel de vereda y bajo el estar se plantean el estacionamiento y hall de acceso. Desde el hall en planta baja subimos suavemente al nivel donde se desarrolla la casa. Como rotula o nexo de conexión entre el ala de dormitorios y las áreas sociales se encuentra la escalera, iluminada naturalmente desde una ventana apaisada en la cubierta. Al subir, nos encontramos con un tabique perforado de hormigón, el cual nos genera curiosidad por saber qué sucede detrás de esos huecos, al tiempo que trabaja como filtro y que nos permite adivinar el bosque. La vivienda fue construida, principalmente, en hormigón, con muros de ladrillo hueco, carpinterías en aluminio y madera y decks en madera dura. El parque ha sido resuelto con la idea de reforzar la vegetación propia de la costa, presente en el entorno.
Imágenes gentileza > Estudio Galera Arquitectura / Fotógrafo: Diego Medina – dcfotografia
Ficha técnica
Nombre de la obra: Casa Kaprys
Arquitecto: Ariel Galera – Estudio Galera Arquitectura
Tipo de obra: vivienda unifamiliar
Ubicación de la obra: Cariló, Buenos Aires, Argentina.
Superficie del terreno: 1050 m2
Superficie de la vivienda: 190 m2
Obra: agosto 2011-mayo 2012
pubblicato in data: 16/02/2015




















