
Memoria de los autores
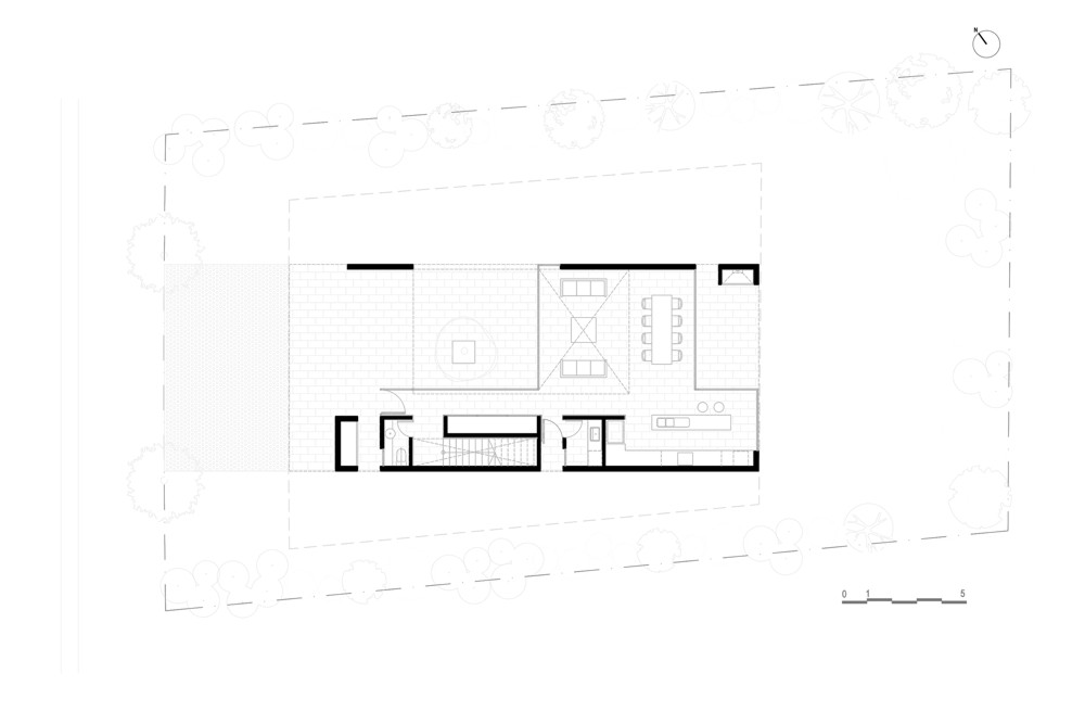
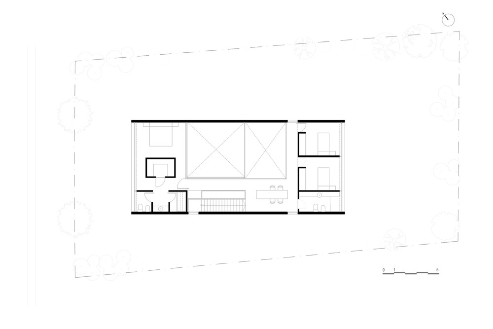
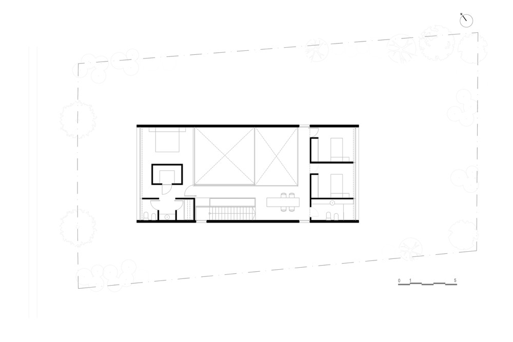
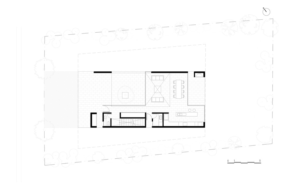
El encargo plantea el proyecto y construcción de una vivienda unifamiliar de uso permanente en un barrio Cerrado en crecimiento del Partido de Tigre, Buenos Aires. El comitente fue una pareja joven y su hija pequeña, la cual será su primera vivienda. En las primeras visitas al predio observamos esta problemática como una oportunidad para proyectar una vivienda que posea características propias, tomando decisiones primarias a la hora de implantarnos en el predio. Fue fundamental concentrarse en la necesidad de obtener áreas que nos separen de los vecinos puesto que es común en este tipo de loteos utilizar los retiros como limites virtuales, dando como resultado en la mayoría de las viviendas existentes pisadas cuadrangulares que repiten su pisada en ambas plantas otorgándoles características compactas con grandes vanos en todas sus caras. De este modo el planteo propone incorporar espacios de uso exterior vinculándolos a los usos comunes de la vivienda en distintas épocas del año con la posibilidad de relacionarse entre sí a través de grandes aberturas que le confieren continuidad visual y óptimas ventilaciones. Pocas operaciones morfológicas determinan las características principales de la vivienda, que a través de disponer dos grandes planos laterales de hormigón, generan espacios con visuales de gran profundidad hacia el frente y el fondo del lote, concediendo mayor privacidad hacia los lotes lindantes que son de mayor cercanía. A su vez la fachada se concibe pensando un volumen en voladizo en forma de bandeja conteniendo la suite principal en la planta alta y por debajo un acceso con una gran continuidad visual. Estructura y materialidad se piensan y conciben en conjunto, donde el optar por el hormigón armado visto de tablas dispuestas de manera vertical en sus caras laterales, caracteriza la totalidad de la pieza arquitectónica. La elección material permitió construir volúmenes compactos de servicio y tabiques portantes que reciben cargas considerables, generando espacios comunes de luces mayores a los 6 metros sin la necesidad de apoyos intermedios. Asimismo, es un material de poco mantenimiento que irá modificando su condición durante el paso del tiempo confiriéndole un carácter significativo e icónico dentro del predio. De la misma manera se piensa el solar en planta baja, como un único piso mármol travertino que no posee transiciones, otorgándole mayor continuidad visual y material. Se establece de esta manera una clara diferenciación entre los espacios de uso común y los de servicio, donde un gran espacio central concentra una óptima relación interior-exterior a través de un patio de proporciones cúbicas que se encierran hacia el interior de la vivienda, que se ve incorporado a los metros construidos sin ser contabilizados como tales. Esa operación le otorga a una vivienda de un metraje reducido en relación a las viviendas existentes una característica espacial propia de una vivienda de mayor tamaño. Los tabiques, separados a 8,50 metros de distancia pasan a ser franjas estructurales donde se le cruzan losas en sentido transversal disponiendo los espacios de descanso hacia el frente y el fondo del lote con similares características de iluminación y ventilación que conforman a su vez la posición del patio y del estar de doble altura con proporciones espaciales análogas al solar exterior, el cual contiene un árbol que será el protagonista de las vivencias familiares, presente en los ocasos y servirá como cobijo de los meses cálidos.
Fotografía > Albano García
pubblicato in data: 09/11/2017
































