
Memoria de los autores
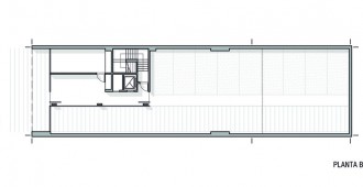
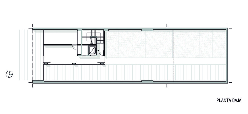
ATV14, edificio de viviendas diseñado por el estudio ATV Arquitectos, está ubicado en una calle arbolada y de poco tránsito de la ciudad de Buenos Aires, sobre un lote de 10 metros de frente por 36 metros de profundidad y entre medianeras. El edificio se presenta como una sucesión de piezas que se encastran en la trama y se caracteriza por ser un espacio atractivo para un usuario joven. La estructura de la edificación se presenta capaz de definir los diversos espacios y sus relaciones. Cada elemento que la compone se hace expresivo y denota su relación tectónica en cuanto a las partes y a la totalidad de la obra.
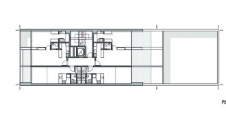
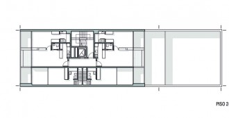
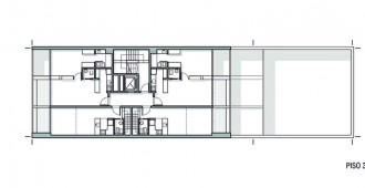
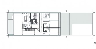
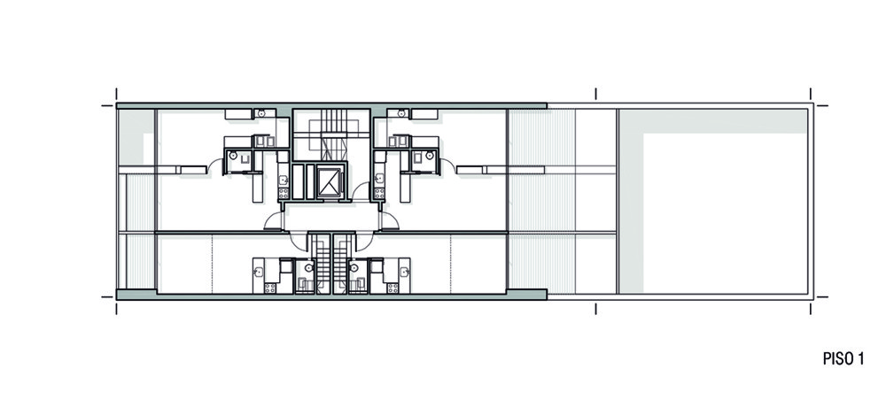
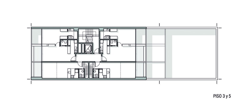
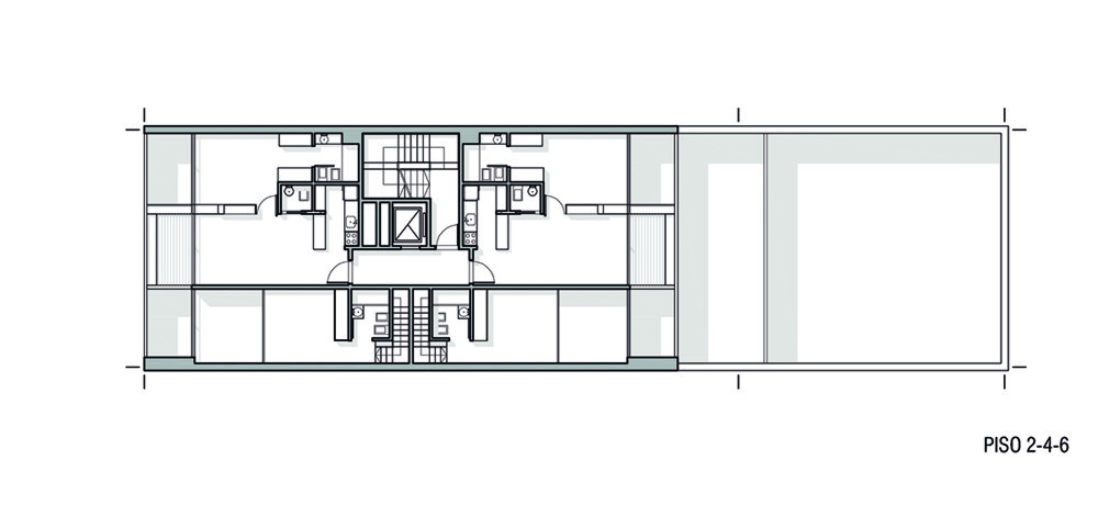
Funcionalmente, el edificio presenta en los primeros seis niveles unidades de dos ambientes de 50 metros cuadrados que se desarrollan haciendo evidente cuáles son los elementos estructurales. Cada viga que se repite y que recorre todo el frente del edificio, se relaciona con una ménsula que estructura parte de un elemento/mueble divisor, determinando así las relaciones de uso de las unidades.
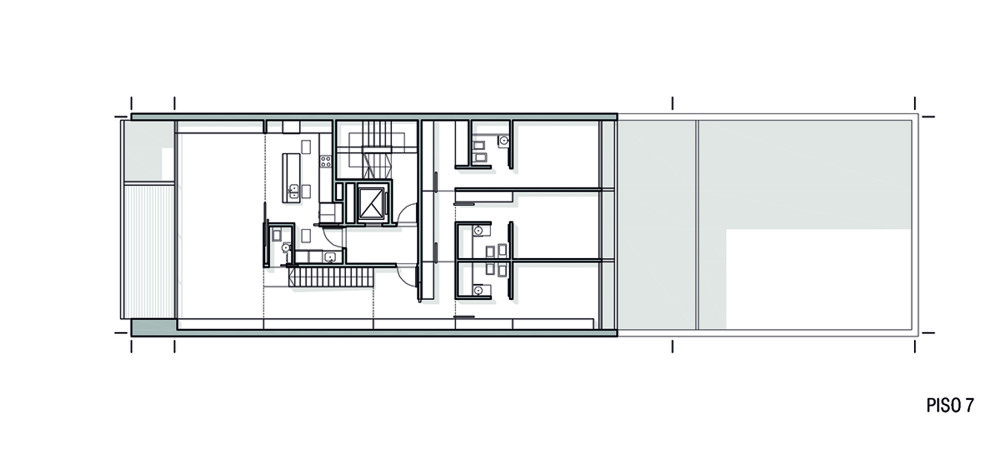
Como remate, el proyecto posee una unidad de cuatro ambientes con piscina propia en un piso superior, relacionando los diferentes niveles por vacíos y entradas de luz que generan una atmósfera propia.
Esta obra formará parte de los edificios que se podrán visitar durante el Open House Buenos Aires 2015 que se realizará los días 31 de octubre y 1 de noviembre. La propuesta para esta visita consistirá en mostrar distintas unidades del edificio y los espacios comunes del mismo, al mismo tiempo que los arquitectos describirán y explicarán las razones de ser del proyecto. Se espera que del evento participen unas 25.000 personas.
pubblicato in data: 30/10/2015















