Argentina: ESCALA83 Apartamentos, Mendoza – GRUPODEARQUITECTURA

Argentina: ESCALA83 Apartamentos, Mendoza - GRUPODEARQUITECTURA
Foto: GARCÍA+BETANCOURT

Memoria de los autores

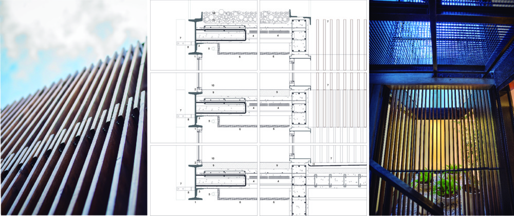
ESCALA83 Apartamentos. Es un pequeño edificio de departamentos de alquiler, ubicado en la Quinta Sección de la ciudad de Mendoza (Argentina), una franja bien definida de la ciudad, próxima al Parque Gral. San Martín, con preponderancia de casas bajas, que de a poco va cambiando su perfil hasta alcanzar los 12m, altura máxima permitida. Particularmente, frente a este terreno se encuentra un Parque y Sede de Bomberos que junto con la Plaza del Archivo Histórico, forman un conjunto de arboles añosos. De acuerdo al FOT (factor ocupación total), se consiguió construir tres departamentos – uno por piso – en planta baja de menor superficie y dos más amplios en los niveles siguientes. El edificio se inserta dentro de la trama retomando las líneas y alturas de sus vecinos colindantes, sintetizado en un solo plano y unificando el retiro obligatorio. Sobre la Línea Municipal, un portón de rejas marca el límite entre privado y público, el ingreso peatonal y vehicular, mientras el suelo de baldosa calcárea ingresa al solar integrando exterior e interior. Un bloque de hormigón es el único apoyo visible en este nivel. Sólo algunas perforaciones en el muro permiten ver hacia la calle; el departamento de Planta Baja se abre francamente al Norte, hacia un patio de granza, muros con enredaderas y plantas de bajo consumo hídrico, que se integra al interior. El núcleo de escaleras está resuelto con una malla de planchuelas industrializada, así este espacio aporta luz y aire en todos los niveles. Los dos departamentos superiores crecen hasta la línea de retiro frontal y ocupan todo el ancho del terreno, donde se organiza el sector de estar-comedor y cocina, delimitado con un frente totalmente vidriado que extiende sus límites visuales hacia la arboleda vecina y se apropia del tilo existente frente a la línea municipal. La fachada, protegida por un cierre de tablas de madera dispuestas verticalmente, abre o cierra las miradas según la posición del observador. Aprovechando la orientación Norte-Sur del lote, se dispuso un patio entre el área de estar y los dormitorios, delimitado por paños y aberturas vidriadas transparentes o traslúcidas, que produce circulación de aire e ingreso de luz en todos los ambientes y crea un nuevo paisaje interior. Al Oeste se cierra con tablas de madera que actúan como filtro solar y dan privacidad a las viviendas. La fachada Norte se asienta sobre el terreno y se eleva verticalmente como un bloque de hormigón calado por las ventanas de los dormitorios, que manifiestan la altura total de cada piso. Sobre el último nivel, la terraza permite el disfrute de las vistas a la montaña. La superficie se trabajó con un deck de maderas recicladas, piedra pómez partida y se dispusieron plantas resistentes a la exposición solar. El único elemento que sobresale del perfil es un prisma de rejas blancas, que cubre los tanques de agua y por la noche se ilumina recreando un efecto de fanal. El hormigón, la Madera y el Acero definen la estructura y la estética del Edificio. Los materiales quedan expuestos tal cual son, elegidos por su carácter único y sus cualidades físicas. Sin columnas, con grandes vanos y con el tamiz y protección que produce la madera, el exterior y el interior se integran sin interrupciones.

Imágenes gentileza > GRUPODEARQUITECTURA / Fotografía > GARCÍA+BETANCOURT

Ficha Técnica

Obra: ESCALA83 Apartamentos
Proyecto: GRUPODEARQUITECTURA
Arquitectos: Mauricio Aguirre – Paula Neglia
Estructuras: Ing. Paula Pizolatto
Administración: GRUPODEARQUITECTURA
Ubicación: Sargento Cabral 83, 5º Sección, Mendoza, Argentina
Superficie Terreno: 165 m2
Superficie Construida: 230m2
Año de proyecto: 2012
Año de finalización: 2014

 

pubblicato in data: 09/11/2014

, , ,