Argentina: FoLa – Fototeca Latinoamericana, Buenos Aires – KLM Arquitectos

Argentina: FoLa - Fototeca Latinoamericana, Buenos Aires - KLM Arquitectos
Foto: KLM Arquitectos

Argentina > Imágenes de FoLa – Fototeca Latinoamericana, inaugurada el 7 de octubre de 2015 en Buenos Aires, obra del estudio KLM Arquitectos – Federico Kelly, Paula Lestard, Hernan Maldonado Arquitectos

Imágenes gentileza > KLM Arquitectos

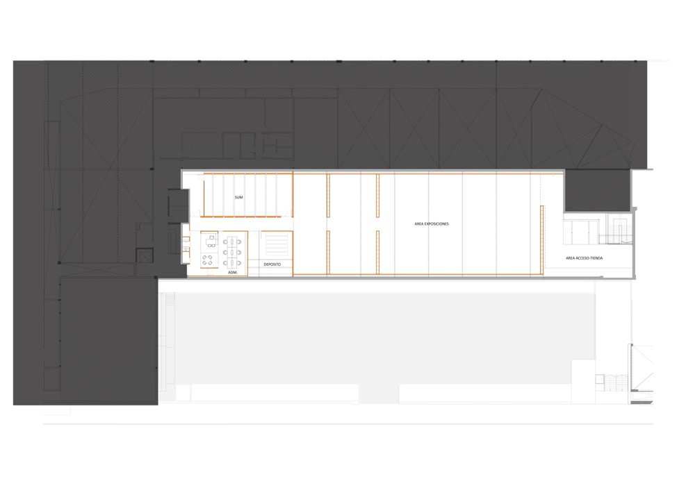
FICHA TÉCNICA

UBICACIÓN: Distrito Arcos. Ciudad de Buenos Aires.
SUPERFICIE: 1100M2
PROYECTO Y DIRECCION: KLM Arquitectos – Federico Kelly-Paula Lestard-Hernan Maldonado Arquitectos
EQUIPO DE PROYECTO: Demian Schneider, Natalia Cavalieri,Erica Laufgang.
DISEÑO Y DESARROLLO SECTOR TIENDA: Arqta Lorena Guillen Vaschetti.
PROYECTO ILUMINACION: Pablo Pizarro Arquitecto
CONSTRUCCION: C2O CONSTRUCCIONES – Sergio Castelli-Jaime Otaegui Arquitectos / Jefa de Obra: Arqta. Mirta Maceira
PROYECTO E INSTALACION AIRE ACONDICIONADO: ABAQUE / MARIO ALCOBA.
INSTALACION DE PREVENCION Y EXTINCION DE INCENDIO: GYB CONTROLS

pubblicato in data: 07/11/2015

, ,