
Memoria de los autores
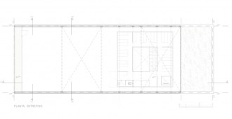
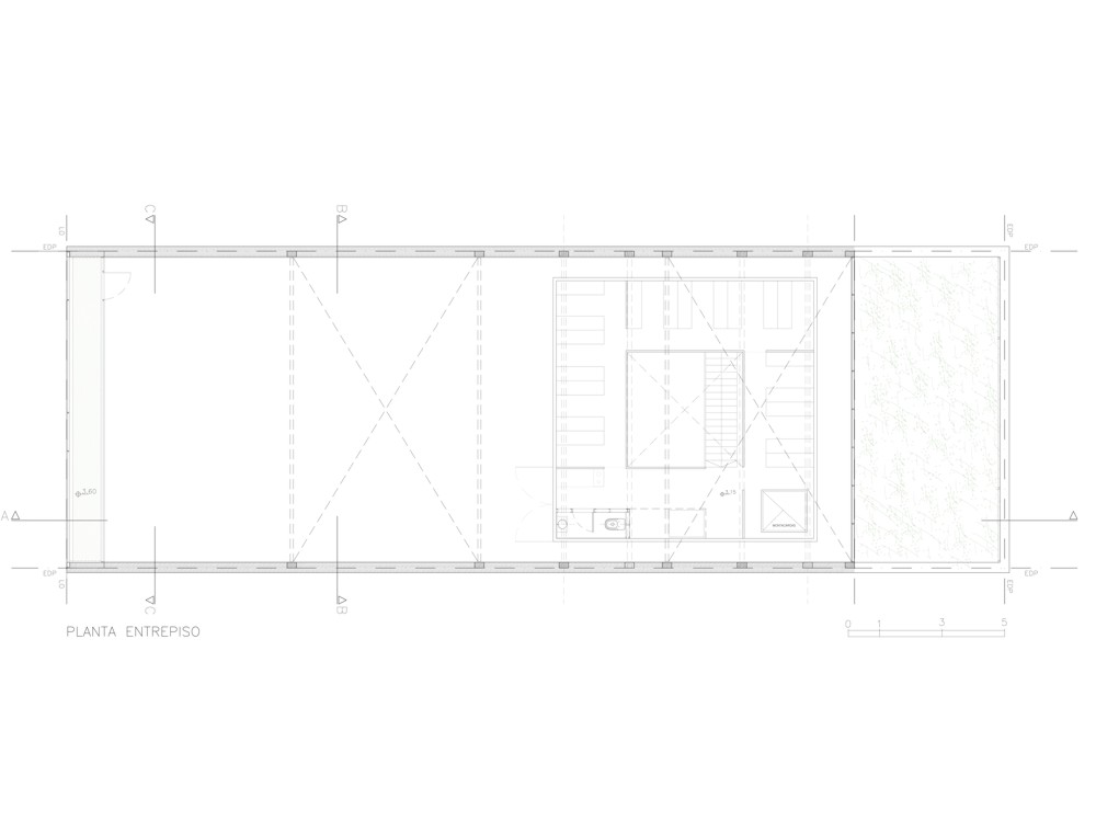
El encargo para la ciudad de La Plata (Argentina) se emplaza en el nuevo corredor comercial en las cercanías a la Catedral. Se construye un local comercial sobre una antigua casa inutilizable dado el daño estructural, por lo cual, se remplaza con una nave simple de grandes dimensiones dotando de gran flexibilidad al espacio. La obra se desarrolla a través de tres elementos, la fachada, el espacio interior y el patio. La fachada reconstruye en sus límites el perfil urbano de la cuadra, determinando a su vez la configuración de un fuelle lineal tanto de control solar en su parte superior como de vidriera y acceso en su parte inferior. La indeterminación de espacios nos lleva a tomar la decisión de trabajar el interior como una instalación efímera, respondiendo a las necesidades del encargo puntual, así como también adaptarse a cualquier otra necesidad. Para ello se libera el volumen en su totalidad y se buscan alturas generosas eliminando la presencia de obstáculos y piezas estructurales innecesarias. La cercanía al puerto de Ensenada determina la elección de los containers como piezas de trabajo posibles para desarrollar las instalaciones de todo lo subsidiario al sector de ventas manteniendo la fluidez espacial y permitiéndonos una pieza estandarizada para desarrollar un sistema y su correcta interacción según requerimientos y disposiciones. La relación establecida entre el fuelle y la instalación de containers cualifican la noción del corte en el proyecto, determinando las proporciones y módulos. La ubicación de la escalera en forma paralela al patio trasero y la constante desaparición y aparición del usuario en la reposición dotan de actividad dinámica tanto a la pieza como al fondo. El interior se completa con el sistema modular de equipamiento desarrollado para la marca.
Imágenes gentileza > BBC Arquitectos / Fotógrafo: Manuel Ciarlotti
Ficha técnica:
Proyecto: BBC Arquitectos
Autores: Angela Bielsa, Luciana Breide, Manuel Ciarlotti Bidinost
Ubicación: Calle 12 1148, La Plata, Buenos Aires, Argentina.
Área: 317m2
Año: 2014
Dirección de Obra: Arq. Fernando Caceras.
Interiorismo: BBC Arquitectos
pubblicato in data: 04/02/2015

















