
Memoria de los autores
Se trata de una casa de vacaciones situada en Montafon, el valle más meridional de la región austríaca de Vorarlberg. El solar se encuentra elevado en una ladera orientada a sur, con unas vistas espectaculares. La casa se abre, por tanto, fundamentalmente hacia el sur, buscando el sol y las vistas, y se cierra casi completamente en las dos fachadas orientadas a norte.
Esta región de Austria es reconocida por haber sabido compaginar su tradición maderera con la incorporación de las nuevas tecnologías y procesos constructivos, convirtiendo la madera en un material moderno que cumple como ningún otro las exigencias de la construcción actual. Si unimos a eso que Montafon es un valle eminentemente maderero, la elección del material estaba clara.
Lo que no estaba tan claro era la formalización claramente contemporánea de la casa, dado el carácter extraordinariamente conservador de este valle de Vorarlberg. Mientras que en otras partes de esta region austríaca han aceptado sin complejos desde hace años la arquitectura “moderna”, en este caso ésta es la primera vivienda de la zona que lo hace, lo que unido a su visible situación la convierte en un elemento algo provocador para lo vecinos del lugar.
Por tanto, a excepción de la planta sótano, el resto de la casa se ha construido completamente en madera: forjados, divisiones interiores y fachada. Además, el empleo de elementos prefabricados (de madera laminada encolada) o premontados en taller permitió reducir notablemente los plazos de obra. De hecho, el tiempo efectivo de construcción de la casa (sin contar las circunstancias climatológicas y organizativas) fue de 10 semanas.
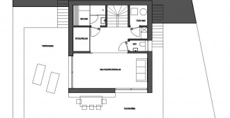
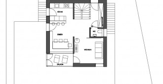
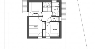
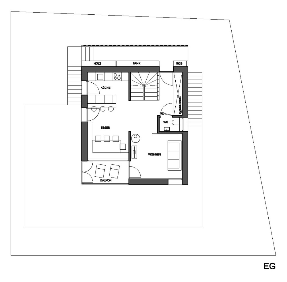
Dispone de 3 plantas, de las cuales la inferior se encuentra semienterrada en la ladera y las dos superiores completamente sobre rasante. El acceso se produce por la planta intermedia, donde un soportal protegido por una celosía crea un ámbito previo a la entrada que la protege de la nieve y sirve a la vez como leñera.
Dadas sus reducidas dimensiones, se han minimizado las zonas de circulación para crear una vivienda compacta pero rica en situaciones espaciales y posibilidades de uso. Esto permitió, por ejemplo, incorporar una terraza en la esquina sur de la casa volcada hacia las vistas, especialmente valorada por el cliente.
Imágenes gentileza > EXIT architects
Ficha técnica:
Ubicación: Gaschurn (Vorarlberg, Austria)
Arquitecto: Ibán Carpintero (EXIT architects)
Presupuesto: 250.000 euros
Sup. const: 186,75 m2
Proyecto: Mayo 2013
Obra: Julio-Diciembre 2013
pubblicato in data: 16/08/2014











