
Memoria de los autores
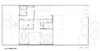
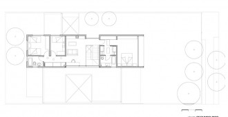
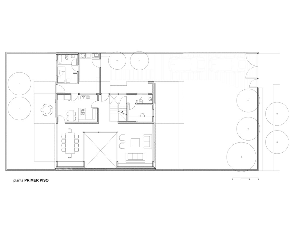
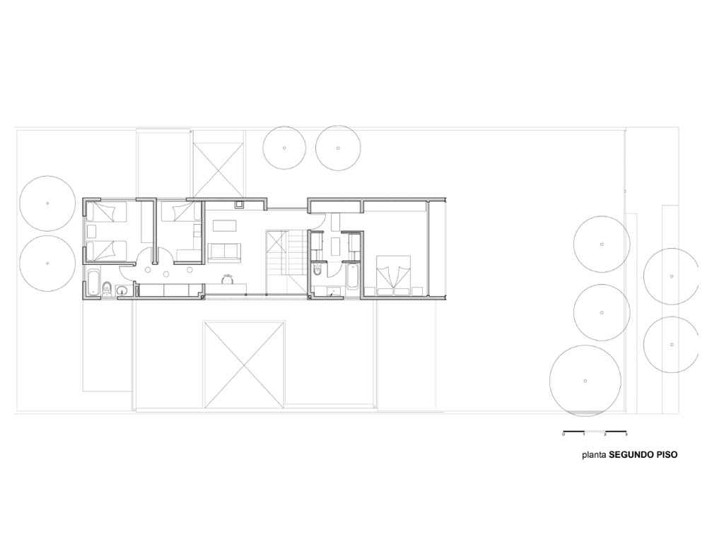
El encargo consistía en una vivienda de una familia joven, emplazada en un terreno de dimensiones limitadas para el programa construido.
Buscando mantener la mayor cantidad de terreno despejado se opto por subir los dormitorios y estar familiar al segundo nivel aprovechando las vistas lejanas utilizando las cubiertas de primer piso.
Al mismo tiempo se opto por mantener la relación visual entre el fondo y el frente del sitio. Para esto se construyo una cubierta que actúa como cerramiento de los principales espacios públicos.
Atreves de elementos móviles se puede unir o fragmentar los espacios y las relaciones con el exterior.
Imágenes gentileza > riesco+rivera arquitectos asociados / Fotografia > Aryeh Kornfeld
FICHA TÉCNICA
Arquitectos: riesco+rivera arquitectos asociados, Francisca Rivera Palma, Jose Riesco Urrejola
Ubicación: Vitacura, Santiago, chile
Área: 166.0 m2
Año Proyecto: 2009
pubblicato in data: 11/12/2015




















