Chile: Casa Noguera, Santiago – riesco+rivera arquitectos asociados

Chile: Casa Noguera, Santiago - riesco+rivera arquitectos asociados
Foto: Aryeh Kornfeld

Memoria de los autores

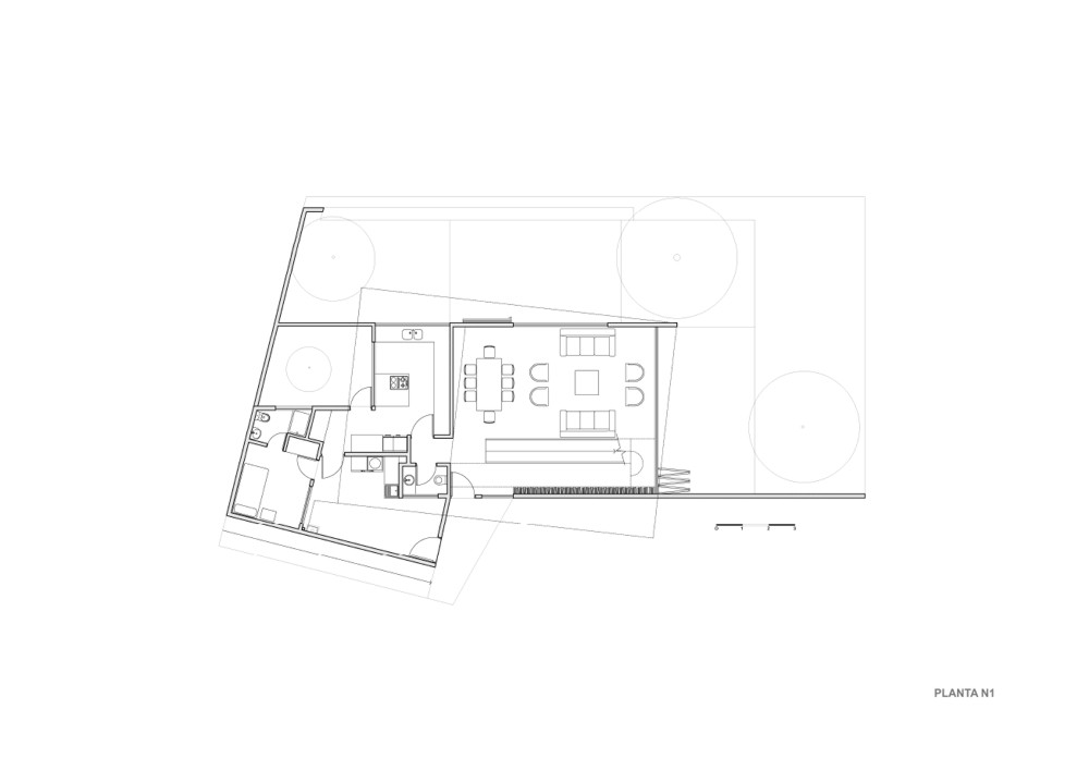
El encargo consistía en un programa sencillo un espacio donde se desarrollaran las distintas actividades públicas de la casa, estar, trabajar, comer y circular.Además de integrar en este espacio una zona de exposición de obras precolombinas. Teniendo independencia la cocina, dormitorios y baños.
La principal dificultad estaba dada en logar un espacio de calidad para el propietario, quien acostumbrado a vivir en grandes superficies, estaba construyendo una casa individual para un nuevo periodo de la vida.
El terreno era un antigua parcela con casas y parque existente, que se subdividiría entre los hijos, dejando un remanente en el cual se debería emplazar la nueva vivienda, el acceso y estacionamientos al total del conjunto. Tocando el mínimo posible los arboles y vegetación existente.
Estas condiciones sumadas a las vistas y asoleamiento, definían claramente las relaciones con el exterior. Las cuales estaban condicionadas y definidas. La cara sur y poniente debía ser cerradas. Por regulación la primera y por los estacionamientos la segunda.
Para seguir manteniendo la relación visual con el parque, se opto por unasegunda plata que conectada atreves de una rampa, que busca prever un futuro inciertoy permite un fácil acceso al muro biblioteca.
La casa se configura como 2 rectángulos girados en primer y segundo piso. Buscando recogen las principales vistas y asoleamientos, estos se conectan atreves de una doble altura y la rampa- biblioteca. Este giro genera espacios intermedios, que permiten por un lado dar privacidad a los distintos usos, exponer las figuras precolombinas, concentrando en un mismo espacio la totalidad del espacio público requerido.
Exteriormente atreves de estos quiebres y muros, se construyen 5 patios de distintas cualidades, generando aperturas y cerramientos condicionando la relación con el exterior y el paisaje existente.

Imágenes gentileza > riesco+rivera arquitectos asociados / Fotografia > Aryeh Kornfeld

FICHA TÉCNICA

Arquitectos: riesco+rivera arquitectos asociados, Francisca Rivera Palma, Jose Riesco Urrejola

Arquitectos Colaborador: Francisco Adriasola C.

Ubicación: Las Condes, Santiago, Chile

Año Proyecto y construcción: 2011

Superficie del terrero: 1.277,88 m2

Superficie construida:139,8 m2 + terrazas

pubblicato in data: 03/04/2016

, , ,