
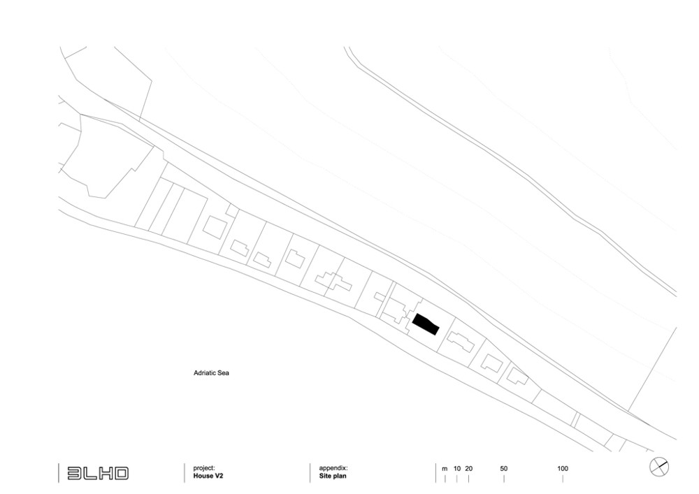
Casa V2 se encuentra en Dubrovnik , en la zona urbanizada de Lozice . En un lugar atractivo cerca del mar, que está determinada por la topografía escarpada El concepto básico del diseño fue el de crear una casa que está abierta a la naturaleza, y al mismo tiempo protegida contra el clima. Las maravillosas vistas que se ven desde la parcela se utilizan al máximo con grandes ventanales en las fachadas.
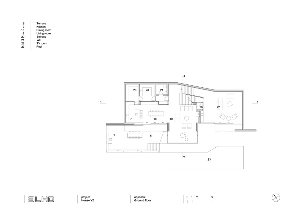
La casa se desarrolla en varios niveles, debido a la pendiente de la parcela – la entrada está en la planta superior, la zona de estacionamiento está al lado de la calle, y las otras actividades se organizan en desniveles: tres dormitorios con sus cuartos de baño , el dormitorio de los padres con un vestidor y un cuarto de baño, escalera, amplia sala de estar, comedor, cocina, espacio de servicio, almacenamiento y aseo, sala de TV con una pantalla de proyección y espacio para que los niños jueguen. El living y comedor tienen una conexión directa con los espacios exteriores – terraza parcialmente cubierta con una piscina al aire libre. El medio ambiente también se ha diseñado en varios niveles – terrazas que están conectados por escaleras y descienden hasta el mar.
La fachada y el techo están revestidos con placas de piedra blanca; grandes ventanas de cristal están parcialmente empotradas en el volumen y abren la casa hacia el mar, pero al mismo tiempo, garantizan una agradable sombra en el interior. Las terrazas están pavimentadas con piedras o tablones de madera de teca y todas las superficies disponibles están plantados con especies vegetales autóctonas y ejecutadas en materiales adaptados a la zona y a su clima.
Ficha técnica:
Autor: 3LHD
Equipo de proyecto: Sasa Begovic, Marko Dabrovic, Tatjana Grozdanic Begovic, Silvije Novak, Romana Ilic, Marin Mikelic, Ivana Dabrovic / Ecoing d.o.o., Kristina Vidic / Ecoing d.o.o.
Colaboradores: Hrvoje Vidovic / 3LHD, Caroline O’ Leary / 3LHD
Ubicación: Dubrovnik, Croacia
Fecha fin de obra: junio de 2013
Superficie: 399 m2
Imágenes gentileza > 3LHD / Fotógrafo: Marko Ercegovic
Links >
3LHD
Otras obras > House K, Zagreb – Croacia / Zamet Centre, Rijeka – Croatia
pubblicato in data: 18/01/2014




















