
Memoria de los autores
La vivienda se sitúa en Lorquí, una pequeña ciudad del sur de España rodeada de un paisaje formado por colinas erosionadas conocido como los Montes Blancos.La forma ascendente de la casa dibuja un alzado triangular que incide sobre el terreno para capturar las vistas de la vega del río Segura.
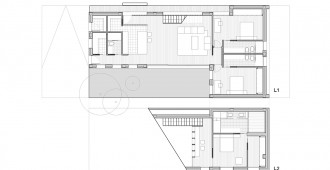
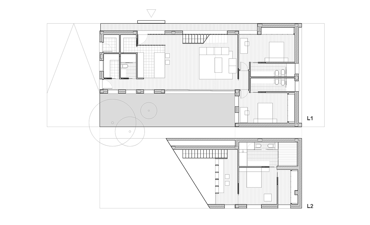
El espacio doméstico tiene una organización sencilla en torno a un amplio salón de doble altura que desciende en su parte posterior para albergar la cocina y la zona de servicios. La zona más alta de la casa cuenta con un bajo cubierta donde se sitúa el dormitorio principal. La escalera de acceso, formada por una losa quebrada de hormigón visto, culmina en un balcón interior con vistas hacia el salón que sirve como espacio de oficina.
La planta baja se abre lateralmente al jardín a través de un amplio ventanal, mientras la planta superior cuenta con una terraza semicubierta. Los colores claros, propios de la arquitectura tradicional de zonas soleadas, identifican el interior y exterior de la casa. El mortero de la fachada, las carpinterías y las paredes interiores consiguen un espacio luminoso en el que sólo contrastan los suelos de tarima de madera grisácea y un muro de travertino de color crema que cierra y ampara la puerta de entrada.
El sistema constructivo de la vivienda se basa en una estructura porticada de hormigón armado y cerramientos de termoarcilla. La cubierta está formada por una losa de hormigón impermeabilizada sobre la que se sitúa un panel sándwich protector.
Imágenes gentileza > AQSO arquitectos office
Links >
AQSO arquitectos office
pubblicato in data: 10/04/2014








