
Memoria de los autores.
La biblioteca digital Casa de las Ideas se encuentra ubicada a lo largo del canal que atraviesa la colonia Camino Verde de Tijuana. Las edificaciones adyacentes, en su mayoría residencias y negocios construidas de manera informal, dan su cara hacia este mismo canal, donde se concentra una gran actividad pública, transporte y negocio tanto formal como informal. Dos retos caracterizan este terreno: el crimen y las inundaciones. La biblioteca es parte del plan de desarrollo urbano, una iniciativa de SEDESOL, la cual proporciona no solo la canalización del río, sino la integración de una serie de espacios públicos, parques, espacios recreativos, centro comunitario y la biblioteca a lo largo de este. El objetivo es de mejorar la calidad de vida de sus residentes y combatir el crimen por medio del diseño de espacios cívicos, infraestructura y programas.
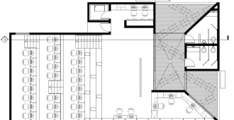
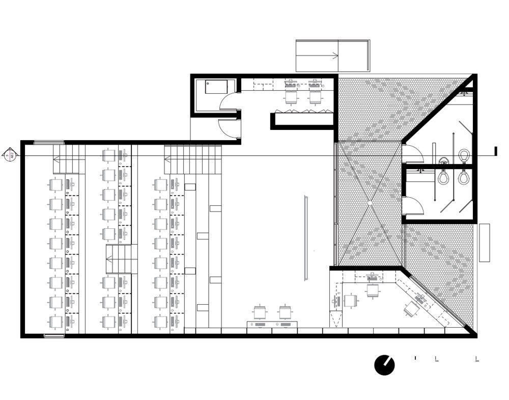
La propuesta de la biblioteca constituye un espacio de solo 220 metros cuadrados. El reto espacial y el cuestionamiento sobre como una biblioteca digital puede contribuir a la ciudad, han generado una nueva tipología para la biblioteca: un espacio colectivo donde el aprendizaje y la interacción de la información va mas allá de la simple accesibilidad de estos servicios. Su arquitectura se abre a una serie de escenarios tanto al interior como al exterior. La forma del edificio ofrece una sala multiusos interna en diversas plataformas donde se pueden dar conferencias, obras de teatro, talleres, espacios de lectura y acceso a computadoras. La pendiente generada por los desniveles articula un vacío en su exterior en la parte posterior del edificio, donde se propone un foro al aire libre. Una cascada secuencial de espacios hace que el edificio de forma lisa y hermética se abra completamente al público aún cuando no este en horario de función. La intención primordial es crear y hacer ciudad por medio de la forma de arquitectura que aporte y de iniciativa a la convivencia cívica de sus espacios adyacentes.
Imágenes gentileza > CROstudio
Fotografía > CROstudio – Arturo González, Joseph Ruiz Tapia, Marcel Sánchez
Ficha técnica
Biblioteca Casa de las Ideas (Modulo Prep)
Arquitectos: CROstudio / Adriana Cuellar y Marcel Sánchez
Equipo de colaboradores / asociados: Gabriela Bendeck, Arturo González, Joseph Ruiz Tapia
Superficie: Área construida: 220m2 / Terreno: 600m2
Proyecto: Noviembre 2011
Construcción: Febrero 2012 / Noviembre 2012
pubblicato in data: 16/06/2014




















