Video: Nueva Jefatura de Gobierno de la Ciudad de Buenos Aires – Foster + Partners

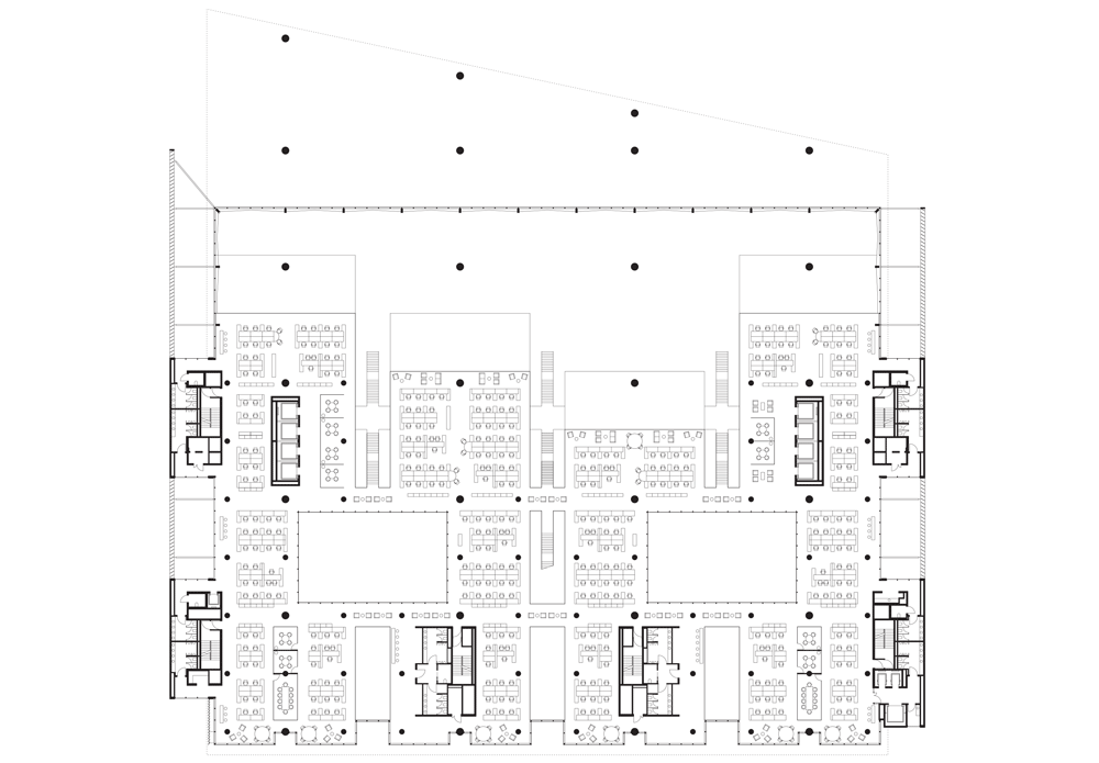
Argentina > Se inauguró hoy (01/04/15) la nueva sede de la Jefatura de Gobierno de la Ciudad de Buenos Aires. El edificio diseñado por Foster + Partners, Berdichevsky + Cherny y Edgardo Minond fue pensado originalmente como la  nueva sede corporativa del Banco Ciudad y en  marzo de 2014 se anunció el cambio de función…

Imágenes (via Foster + Partners)

+ información sobre el proyecto > fosterandpartners.com

pubblicato in data: 02/04/2015

, , , , , ,