Sono stati annunciati il 16 dicembre 2025 i risultati della decima edizione del Premio Europeo di Architettura Matilde Baffa Ugo Rivolta, il riconoscimento biennale promosso dall'Ordine degli Architetti della Provincia di Milano per individuare e valorizzare i progetti di edilizia sociale che si distinguono per l'alta qualità progettuale e costruttiva, e per la capacità di dialogo con il contesto urbano. L'edizione 2025 era aperta agli interventi realizzati tra gennaio 2020 e dicembre 2024 nei Paesi dell'UE, nel Regno Unito e in Svizzera.
A distinguersi, questa volta, è la Spagna, che si aggiudica sia il premio sia la menzione speciale, un risultato che conferma l'attenzione del paese iberico per le politiche abitative, affrontato attraverso nuovi modelli abitativi e sperimentazioni sul rapporto tra spazio domestico e spazio pubblico.
Il premio va a Vivas Arquitectos per Shelter for homeless women, centro per donne senza fissa dimora realizzato nel cuore residenziale di Sarrià-Sant Gervasi, a Barcellona. La struttura, con 100 posti letto, affianca all'accoglienza notturna un presidio diurno e una serie di servizi di supporto, e lavora su percorsi individuali orientati al reinserimento. La giuria ha premiato in particolare due scelte: la collocazione in un'area centrale della città, in controtendenza rispetto alla frequente marginalizzazione di queste strutture, e un impianto basato su spazi comuni ampi, in parte accessibili anche a utenti esterni.
La menzione speciale va invece allo studio Emiliano López Mónica Rivera Arquitectos per 18 Intergenerational Social Housing realizzato a Esporles, Maiorca, un modello abitativo che mette in relazione residenti di età diverse favorendo dinamiche di solidarietà intergenerazionale. La giuria - composta da Frédéric Chartier, David Lorente Ibáñez, Marco Peverini, Enrico Scaramellini, Paola Viganò, Maite García Sanchis, Mauro Marinelli - ne evidenzia «un'elevata qualità del progetto, ritenuta esemplare per un edificio di piccola scala all'interno di una zona marginale a elevata presenza turistica», capace di offrire «un'ampia gamma di opportunità intergenerazionali».
indice dei contenuti
Shelter for homeless women
di Vivas Arquitectos
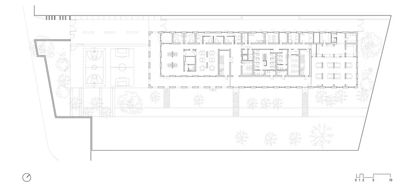
Realizzato nel distretto Sarrià-Sant Gervasi di Barcellona, Shelter for homeless women integra centro diurno e centro notturno per una capacità complessiva di 100 posti. Il progetto interpreta il rifugio non come infrastruttura d'emergenza, ma come struttura di transizione orientata alla reintegrazione, mettendo in rete accoglienza e accesso a servizi sociali, sanitari, formativi e lavorativi.
L'impianto lavora su tre priorità: protezione e riservatezza (con un giardino perimetrale che filtra la relazione con la città), spazi intermedi per l'incontro (corti, balconate vetrate e terrazze) e un'atmosfera familiare, affidata a materiali interni caldi e a una scala più domestica.
Il volume è un prisma rettangolare di circa 60x16 m, alto fino a 9 m su tre livelli. Alcune porzioni vengono sottratte per generare portici e terrazze, portando l'esterno nel funzionamento quotidiano del centro. Sul fronte energetico, l'edificio combina strategie passive e controllo climatico: struttura in legno, schermature mobili con regolazione automatica in funzione di temperatura e irraggiamento, con l'obiettivo di prestazioni near zero-energy.
Nelle motivazioni la giuria parla di «uno spazio di dignità per una popolazione fragile e abusata», sottolineando qualità progettuale e costruttiva, il rapporto con il contesto urbano e il ruolo degli spazi comuni e degli elementi bioclimatici nella definizione complessiva dell'intervento.

foto: ©José Hevia

foto: ©José Hevia

foto: ©José Hevia

Planimetria piano terra ©Vivas Arquitectos
18 Intergenerational Social Housing
di Emiliano López Mónica Rivera Arquitectos
A Esporles (Maiorca), 18 Intergenerational Social Housing si innesta nel tessuto del paese proseguendo la sequenza di edifici con tetto a due falde lungo le strade perpendicolari al torrente. L'intervento è composto da due volumi che inquadrano un patio alberato e arretrano l'accesso rispetto alla strada, in continuità con un giardino pubblico esistente.
Il corpo principale ospita 18 alloggi distribuiti su piano terra e due livelli. Il secondo volume raccoglie funzioni collettive e di servizio -distribuzione verticale, locali tecnici e di portineria- oltre a spazi condivisi come sala polivalente, sala da pranzo e cucina comune.
Sul piano spaziale e climatico, l'edificio lavora per contrapposizioni: verso nord il prospetto è più compatto, con murature portanti spesse e aperture contenute; verso il patio si apre con una struttura porticata che organizza gli accessi e costruisce uno spazio intermedio. La galleria vetrata alterna configurazioni stagionali: in inverno, chiusa, contribuisce alla captazione e alla conservazione del calore; in estate, aperta e schermata, funziona come balcone ventilato protetto dall'irraggiamento. Su questo percorso comune gli alloggi si affacciano con sedute, porte e finestre che modulano la privacy e favoriscono un uso quotidiano degli spazi condivisi.
Per la giuria, «nonostante l'intervento sia di piccola scala, è da intendersi come esempio anche per aree più ampie»: rilegge «principi bioclimatici tradizionali» e affida agli spazi comuni la capacità di favorire l'incontro tra residenti.

foto: ©José Hevia

foto: ©José Hevia

foto: ©José Hevia

foto: ©José Hevia

Dettaglio costruttivo ©Emiliano López Mónica Rivera Arquitectos

Sezione ©Emiliano López Mónica Rivera Arquitectos
Per approfondire
→ ordinearchitetti.mi.it
pubblicato il:

