Struttura semplificata e focalizzazione su impiantistica e funzioni tecniche del progetto. Questi i punti di forza di Namirial BIM.
Un kit di strumenti per la progettazione in 2D e in 3D che permettono di integrare architettura, struttura e impianti; grazie agli specifici Addon, infatti, Namirial BIM potrà essere espanso e personalizzato a seconda delle necessità di progettazione, visualizzazione e documentazione del processo.
Namirial BIM permette di progettare grandi architetture, grazie a potenti strumenti di progettazione algoritmica e al supporto dei modelli di grandi dimensioni: con l’uso di strumenti a forma libera è possibile pianificare il progetto ad ogni livello, dal modello concettuale dei volumi all’intero modello informativo dell’edificio.
Namirial BIM è in offerta lancio: provalo ora
Le caratteristiche principali del software
Livelli di dettaglio espandibili
Iniziando con un elemento base, utilizzando strumenti che rappresentano elementi costruttivi reali come muri, travi e solai, è possibile aggiungere dettagli man mano che il progetto si evolve.



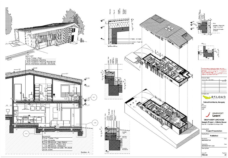
Sezione e modello architettonico con il contesto
Progetto di elementi complessi
Sistemi di modellazione flessibili permettono una progettazione creativa fluida e produttiva con strumenti come Curtain wall e Scala.

Capanno. Vista 2D del curtain wall e vista 3D complessiva

Sezione con modelli predefiniti e sezione 3D
Modellatore MEP integrato
Gli strumenti di progettazione MEP ampliano ulteriormente l’approccio alla progettazione integrata di Namirial BIM. L’accesso alle apparecchiature MEP intelligenti all’interno del modello architettonico permette un’integrazione corretta i sistemi MEP nel modello BIM senza dover ricorrere a un approccio federato.


Modelli MEP e libreria accessori
Strumenti professionali di visualizzazione
Combinazioni di lucidi e sovrascritture grafiche permettono di rappresentare velocemente e controllare il modello in ogni aspetto: strutture portanti, antincendio, uscite di emergenza ecc. potranno essere filtrate con un semplice click del mouse.

Filtro posizione elementi interni/esterni e filtro soluzione arredi

Filtro accessibilità e filtro strutture antincendio
Animazioni integrate, studi solari
La possibilità di animazioni e di modulazioni della luce solare permettono viste particolari, dalle sequenze di costruzione a viste “vola-attraverso” il progetto.

Vista 3D di un progetto con finestra studio solare alba/tramonto
Libreria di oggetti parametrici 3D
La libreria di oggetti 2D e 3D è stata aggiornata per offrire una sempre più completa galleria.

Vista 3D con disposizione degli arredi e finestra libreria oggetti
Strumenti di documentazione pronti all’uso
Le funzioni intuitive offrono la flessibilità necessaria per creare documentazione grafica direttamente dal modello, sia 2D sia 3D. Il set di documentazione “out-of-the-box” è ottenibile direttamente dal modello BIM, con la possibilità di personalizzarlo secondo i destinatari delle informazioni.
I servizi di progettazione sono estesi ai computi senza alcun impegno aggiuntivo, ed è possibile creare facilmente piani e schede con informazioni precise provenienti dal modello BIM; questo permette l’eliminazione di errori e imprecisioni nelle fasi esecutive del progetto.


Tavole di stampa

Abaco automatico delle porte

Guarda i video tutorial sul sito Namirial BIM
NAMIRIAL S.p.A.
via Caduti sul Lavoro n. 4
60019 Senigallia (An) – Italy
Tel. +39 071 63494
