È la qualità a fare da fil rouge ai progetti premiati nella seconda edizione del Premio POROTON® 2022, il concorso bandito dal Consorzio POROTON® Italia, dal 1972 impegnato a sviluppare ricerche e approfondire tutti gli aspetti tecnici nell’ambito delle murature in laterizio.
Il Premio, attraverso le varie categorie di cui è composto – ristrutturazioni con demolizioni/ricostruzioni complete o parziali, ricostruzioni post-terremoto e nuove costruzioni – le diverse tipologie edilizie ed architettoniche – dall’edificio unifamiliare al complesso sanitario o scolastico, dal complesso residenziale alle strutture socio-educative o culturali – e i diversi ambiti di inserimento territoriale – da contesti urbani a contesti rurali e di valore paesaggistico – rappresenta un momento importante per vedere applicati bene i sistemi di muratura POROTON®, sia come tamponamento che come muratura portante (ordinaria o armata). A vincerlo, ex aequo, la Casa della Musica (Mario Cucinella Architects) e i Laboratori e Centro Socio Educativo per persone con disabilità (ifdesign).
Terzo classificato, per la giuria composta da composta dall’Arch. Paolo Orsini, l’Ing. M.Arch.AA ARB Luca Peralta e dal Presidente del Consorzio POROTON® Italia Stefano Midolini, il progetto “Casa Bona”, dello studio Zupelli Design Architettura, in provincia di Brescia.
indice dei contenuti

Tra tradizione e innovazione: il progetto di recupero di Casa Bona
Un lavoro particolarmente delicato, quello di ricucitura tra vecchio e nuovo. Sicuramente complesso da affrontare, ma – se interpretato con intelligenza creativa – capace di innescare visioni progettuali di grande valore, tecnico ed estetico. Secondo la Giuria, infatti, “la ristrutturazione dell’antico cascinale a Gambara propone un raffinato intervento di recupero ad usi residenziali di una corte rurale. La semplicità del complesso edilizio esistente viene valorizzata e rispettata dal progetto, che si inserisce con eleganza nelle strutture in laterizio del porticato agricolo, lavorando entro la sagoma del volume preesistente.”
Due lunghi corpi distesi, orizzontali, disposti a gomito, involucro di un vecchio fienile, sono stati il punto di partenza del lavoro di riconversione portato a termine dallo studio Zupelli Design Architettura, nato dalla collaborazione tra Carlo Zupelli e il figlio Ezio, entrambi architetti.
Un progetto che, sia internamente che esternamente, pone l’accento sul contrasto tra le linee estetiche della preesistenza e i nuovi elementi costruttivi inseriti. Ma soprattutto, che, nonostante gli interventi, riesce a rispettare la struttura originale, parte del patrimonio stilistico rurale, le forme e i materiali costruttivi tipici della civiltà contadina, coniugando tradizione e innovazione e definendo un atteggiamento di empatia con il contesto esistente.
Sebbene l’edificio principale sia stato quasi completamente demolito, i progettisti hanno scelto di conservarne la parete in muratura a vista sul fronte strada e la parete confinante con l’edificio sul lato est, su cui è stato realizzato un passaggio carraio per consentire l’accesso alla corte dalla strada. I due fronti del fabbricato sono stati quindi trattati in modi differenti: se sul lato stradale è stata preservata la continuità prospettica e materica della cortina esistente, ripristinando le piccole aperture originarie, nel prospetto sud interno, invece, tra le strutture verticali dei pilastri originali, sono state realizzate nuove finestrature caratterizzate da profili essenziali in alluminio verniciato, grazie alle quali il limite visivo tra dentro e fuori viene meno ed il cortile risulta idealmente inglobato nello spazio interno dell’abitazione. Inoltre su questo fronte, l’esterno è stato realizzato con un intonaco in biocalce dai toni chiari.
“Gli alti pilastri del prospetto interno scandiscono le 4 campate dell’edificio principale” commenta ancora la Giuria “che vengono tamponate e ricondotte alla funzione residenziale grazie all’interposizione di un solaio mediano e ad una sapiente distribuzione degli ambienti interni. L’utilizzo accorto dei diversi elementi costruttivi” – proseguono – “denota una particolare cura nella realizzazione dell’intervento, che affida il disegno degli spazi alla schiettezza delle murature in laterizio POROTON® e del solaio in legno, mantenendo così quel carattere di efficienza essenziale dei cascinali storici.”



Gli interni: un racconto contemporaneo
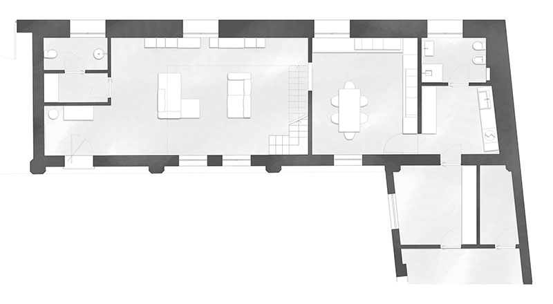
Ricostruita seguendo le linee guida dell’edificio esistente, la nuova architettura, dedicata alla costruzione di un’abitazione unifamiliare di due piani fuori terra, enfatizza alcuni elementi tradizionali tipici del precedente cascinale – il tetto a falda, le travi a vista, il porticato, l’androne – inserendo però contaminazioni più contemporanee a contrasto: le grandi vetrate del prospetto interno, il recupero delle aperture di quello posteriore e la doppia altezza in prossimità della zona living, che lascia intravedere la copertura in legno verniciato.
Ma anche il ballatoio che accoglie la zona notte, una scala in ferro minimale realizzata artigianalmente, la scelta cromatica di toni neutri chiari e le dotazioni impiantistiche: nell’immobile è stato infatti realizzato un impianto elettrico di tipo domotico, riscaldamento a pavimento e un sistema di ventilazione meccanica controllata (VMC), con macchine, tubazioni e cavi d’alimentazione posati nel controsoffitto. La controsoffittatura ha inoltre permesso l’incasso dei corpi illuminanti scelti a seguito di un accurato studio illuminotecnico, con faretti per la zona soggiorno, illuminazione a sospensione per la cucina e applique per la camera padronale e i bagni al primo piano, con l’obiettivo di esaltare le travi a vista della copertura.
Un insieme di accorgimenti progettuali che hanno impresso a Casa Bona una nuova spazialità dinamica, funzionale e contemporanea ma in sintonia con il contesto nel quale si inserisce, donando nuova qualità architettonica e vita ad un agglomerato rurale in stato di abbandono.



Le soluzioni POROTON® utilizzate
L’intervento ha coinvolto due porzioni dell’antico cascinale: il corpo principale, ex barchessa destinata al ricovero dei mezzi agricoli, ed il corpo secondario ad un piano fuori terra adibito a locali di servizio, dispensa e box auto. La prima fase di cantiere ha riguardato la quasi completa demolizione dell’edificio esistente e delle relative superfetazioni. Per ricostruirne il solaio al piano terra, si è optato per la soluzione a vespaio aerato costituito da igloo, con getto di calcestruzzo e rete elettrosaldata per appoggio corroborante e strutturale (sistema che favorisce un flusso d’aria naturale, limitando il problema dell’umidità di risalita nel pavimento e consentendo la dispersione in atmosfera del pericoloso gas Radon). Per il piano superiore è stato invece realizzato un solaio in laterocemento (spessore 24+6 cm) a nervature parallele, con travetti prefabbricati ed elemento in laterizio interposto.
Per quanto riguarda il fronte nord, su strada, ed il lato est, confinante con l’edificio adiacente, le murature esistenti in mattoni pieni a vista sono state opportunamente rinforzate tramite l’inserimento, sul lato interno, di pilastri in c.a. e contropareti isolate in laterizio, che hanno consentito di raggiungere adeguati livelli di isolamento termico. I pilastri in mattoni del prospetto interno, che scandivano le quattro campate dell’antica barchessa, sono stati sostituiti da pilastri in c.a. identicamente sagomati.
I tamponamenti perimetrali dei fronti sud ed ovest sono stati eseguiti con blocchi POROTON® P700 ad incastro di spessore 25 cm, pannelli isolanti in EPS sp. 10 cm e rifodera interna in tramezze POROTON® sp. 12 cm, in modo da creare continuità con la soluzione adottata per il completamento delle murature esistenti. Le pareti sono state finite con intonaco di biocalce sp. 15 mm su entrambe le facce, raggiungendo uno spessore complessivo di 50 cm. Sono stati poi creati i divisori interni e il parapetto del ballatoio al piano superiore, anch’essi con murature in tramezze POROTON® sp. 12 cm intonacate con intonaco di biocalce.

A coronamento della struttura principale è stata posata la copertura ventilata a spiovente, costituita da orditura in legno lamellare ed assito a vista in abete, opportunamente impregnati con prodotti anti tarlo e anti muffa.
La copertura in legno è stata infine completata da un pacchetto ventilato con doppio strato di lana di roccia incrociato di spessore 8 + 8 cm (densità 100 kg/m³), sormontato da un telo impermeabile e traspirante e da una camera di ventilazione di 10 cm, chiusa al di sopra da due strati di assito di 15 mm in abete e da tegole del tipo “coppo di Francia”.

Scheda progetto
Dove: Gambara (BS)
Tipo di intervento: Ristrutturazione con parziale demolizione/ricostruzione a parità di volume
Anno 2021
Progettisti: ZDA | Zupelli Design Architettura
Arch. Iunior Ezio Zupelli, Arch. Carlo Zupelli
Collaboratori Archh. Marco Bettera, Giorgia Bianchi, Francesca Dellabona, Matteo Sturla, Ottavia Zuccotti
Direzione lavori Arch. Iunior Ezio Zupelli
Impresa esecutrice: Edil Framal dei f.lli Aldo e Mauro Toglietti S.n.c.
Tipologia murature
Tamponatura in blocchi POROTON® P700 con rifodera interna in Tramezze POROTON®
Blocchi impiegati
POROTON® P700 sp. 25 cm / Tramezze POROTON® sp. 12 cm

TUTTI PROGETTI DEL
PREMIO POROTON® 2022
↓
CATALOGO
Foto | descrizioni tecniche | soluzioni progettuali
