L'attenzione progettuale dell'Alto Adige rispetto agli ambienti scolastici è ormai cosa nota. Spazi ben pensati e materiali sempre più conformi ai principi di sostenibilità si inseriscono armoniosamente nello scenario del paesaggio montano, mostrando grande capacità nel dare forma al presente guardando al futuro delle nuove generazioni.
L'idea di spazio scolastico come terzo educatore sembra essere presa alla lettera anche nella nuova scuola ultimata dallo studio altoatesino Roland Baldi Architects. Ambienti a misura di bambino, ampie vetrate che inondano le stanze di luce creando una connessione visiva diretta con il paesaggio e realizzazione secondo lo standard CasaClima A: sono queste le principali caratteristiche del progetto, che segue alla Scuola materna di Sluderno, vincitrice della prima edizione del Wood Architecture Prize by Klimahouse.
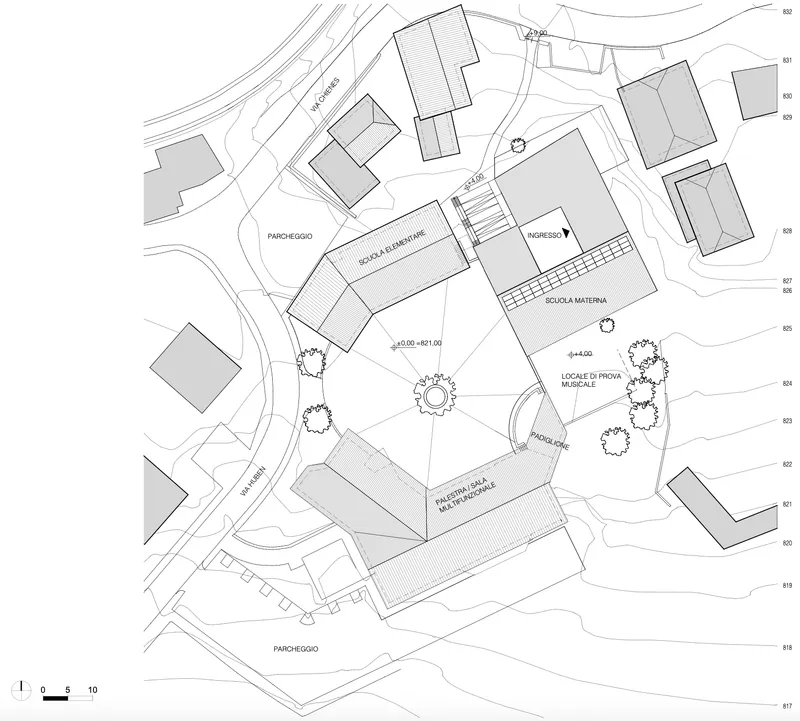
Situata a Chienes, piccolo comune di circa 3.000 abitanti in provincia di Bolzano, la scuola - a sostituzione del vecchio edificio - si sviluppa su due piani e ospita due classi di scuola dell'infanzia e un asilo nido per 20 bambini. Realizzata in legno, con il colore della facciata rossastro ispirato al campanile, si integra armoniosamente nella struttura esistente del centro del paese e offre ai bambini un ambiente sicuro e accogliente.
L'edificio, finanziato attraverso il Piano Nazionale di Ripresa e Resilienza (PNRR) e sostenuto da fondi dell'UE, in fase di progettazione ha dovuto seguire il principio DNSH ("Do No Significant Harm"), ovvero basato sul "non arrecare un danno significativo" all'ambiente.
indice dei contenuti

foto: © Oskar Da Riz
Tutto è a misura di bambino
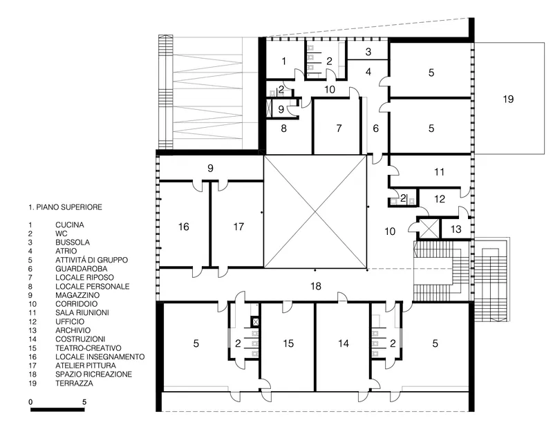
A guidare l'intero progetto sono le esigenze dei bambini, sin dall'ingresso nella struttura. Al piano terra trovano posto il guardaroba, la sala movimento e l'ampio atrio che funge da area centrale flessibile per pause e giochi di gruppo.
Il primo piano, invece, ospita le due aule, quattro atelier e l'asilo nido, tutti orientati verso il giardino, con accesso diretto alle aree esterne, parzialmente coperte per essere utilizzate anche in caso di maltempo.
L'asilo nido è composto da due aule, una sala riposo, una sala personale, una cucina e i servizi igienici necessari, mentre le aree verdi al primo piano rimangono come spazi di gioco all'aperto e offrono ai bambini ulteriore spazio per muoversi e crescere.
Il ristorante, pensato per ospitare anche gli studenti della vicina scuola elementare, è dotato di accesso separato, così che gli alunni possano accedere alla mensa senza disturbare le attività dell'asilo. Si aggiunge, poi, un chiosco che collega l'area esterna con la cucina, strutturato come punto di ristoro durante gli eventi nella piazza.


foto: © Oscar Da Riz
La sostenibilità oltre l'estetica
Pur integrato cromaticamente nel contesto, l'edificio si fa notare dalla piazza per la sua facciata chiara e moderna in legno, tinta di un caldo rosso-bruno che riprende le tonalità del campanile e della casa delle associazioni adiacente.
Il piano terra, parzialmente interrato, è in cemento, rivestito in granito, mentre il primo piano, realizzato con pannelli in legno a strati incrociati, è dotato di un tetto verde con l'integrazione di pannelli fotovoltaici, potente sia esteticamente che per quanto concerne gli aspetti di sostenibilità.
A caratterizzare gli interni è il legno di betulla, utilizzato dalle porte al rivestimento delle controsoffittature acustiche fino ai pavimenti e ai mobili, realizzati su misura, in legno massiccio che, combinata con i colori tenui, crea ambienti caldi e accoglienti, che richiamano un'atmosfera domestica.
Ma al di là del lato estetico, certamente pregevole alla vista, il valore dell'edificio scolastico sta nella grandissima attenzione ai principi di sostenibilità, che hanno portato alla certificazione CasaClima A.
Il riscaldamento avviene tramite una pompa di calore aria-acqua autonoma, a cui si aggiunge una ventilazione controllata con recupero di calore che garantisce aria fresca e un ambiente climatizzato confortevole.
Non meno importante in fase di realizzazione la protezione dal radon, gas naturale che si trova in concentrazioni elevate nella regione, risolta attraverso l'integrazione di una solida soletta in cemento armato, combinata con pannelli in vetro cellulare e una membrana impermeabile al radon.

Le fotografie di Oscar da Riz
![]()















I disegni



Crediti del progetto
Luogo: Chienes
Committente: Comune di Chienes
Architettura: Roland Baldi Architects
Team: Arch. Roland Baldi · Arch. Sila Giriftinoglu · Arch. Erica Mazzoni
Direzione lavori: Baubüro
Direzione artistica: Roland Baldi Architects
Statica: Baubüro
Impianti meccanici: Energytech
Impianti elettrici: Energytech
Coordinatore della sicurezza: Pfeiffer Partners
Superficie lorda di piano: 1.243.06 m²
Cubatura: 3.526 m³
Vincita gara: 02.2021
Inizio lavori: 21.06.2023
Fine lavori: 18.09.2024
Foto: ©Oskar Da Riz
© RIPRODUZIONE RISERVATA
pubblicato il:



