Conquistano il primo posto al concorso di idee per progettisti under 35 Giovani Spazi. Progetta l’Inarcassa che ti somiglia, gli ingegneri Sebastiano Amore e Corrado Salvatore Gioia di Catania. Il concorso, indetto da Inarcassa, la cassa nazionale di previdenza per Ingegneri ed architetti italiani, richiedeva di intervenire sulla sede di via Salaria 229 a Roma, per progettare la ristrutturazione dell’atrio di ingresso della palazzina “B” e degli spazi esterni del complesso e di individuare soluzioni per il collegamento ed il transito tra gli edifici “A” e “B” dello stesso.

La palazzina “A” ha una superficie coperta di 604 mq ed ospita circa 110 dipendenti, la palazzina “B” ha una superficie coperta di 709 mq ed è occupata da 130 dipendenti. Entrambi gli edifici hanno una struttura portante in c.a., solai misti in latero-cemento, tamponature a cassa vuota, rivestimento esterno a cortina colore sabbia. L’ingresso agli edifici avviene su via Salaria 229, attraverso due ingressi carrabili con sbarre ed un ingresso pedonale. Il cortile interno è lastricato in cubetti di porfido ed è adibito a parcheggio. Attualmente tutti i visitatori esterni accedono agli uffici attraverso la reception della palazzina “B”, mentre i dipendenti registrano l’accesso indifferentemente nei due atrii delle palazzine, entrambi dotati di lettore badge.
Il progetto
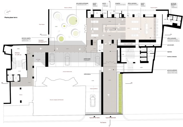
Le richieste erano essenzialmente due: la realizzazione di un unico ingresso centralizzato e situato al piano terra dell’edificio “B”. Un collegamento pedonale coperto tra la palazzina “A” e quella “B” ad un livello scelto dal progettista.

Per rispondere al meglio alle principali richieste i vincitori hanno pensato di iniziare la ristrutturazione dalla prima cosa con cui l’utente entra in contatto: l’ingresso. Il progetto ha totalmente ridisegnato e diversificato i percorsi attraverso una partizione divisoria alta 2m e rivestita con listelli in legno di frassino termotrattato che, dall’ingresso pedonale, filtra la vista delle auto della corsia carrabile. Il progetto prevede un ingresso auto dipendenti e un ingresso pedonale.

L’utente (dipendente o visitatore) appena entrato dall’ingresso pedonale si trova di fronte ad un percorso che lo indirizza verso l’atrio centralizzato. Lungo il percorso l’utente può sostare e dialogare su una seduta in cemento con rivestimento in listelli di frassino o consultare la bacheca amministrativa. Il retro della lunga seduta, occupato da grandi vasi che contengono piante di bambù, funge da filtro visivo della banca adiacente.

Prima di accedere all’atrio, l’utente deve superare una zona di controllo (con apposito spazio per due dipendenti) dotata di tre tornelli, di cui uno per persone con disabilità motorie. Appena superati i tornelli, ci si trova di fronte alla reception, il cui bancone nasce dal prolungamento del piano calpestabile a quota +0,98 ed è rivestito in legno analogo a quello della pavimentazione.

Gli addetti, in funzione del tipo di utenza, provvederanno ad accompagnare il visitatore in un’area d’attesa con salottini, ad avvisare il destinatario della visita o ad indirizzare gli associati verso gli spazi destinati all’accoglienza della palazzina “A”. I dipendenti, invece, appena superato il tornello avranno la possibilità di procedere verso la palazzina “A” attraverso un collegamento controllato e coperto.