
Memoria de los autores
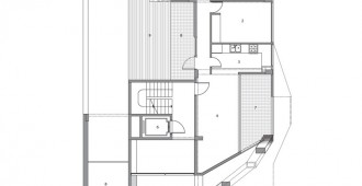
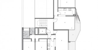
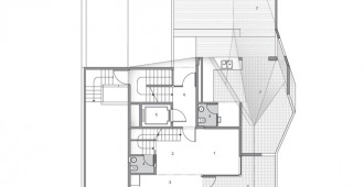
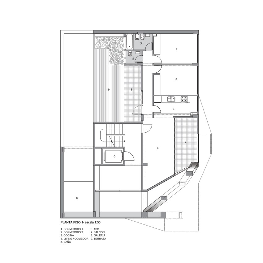
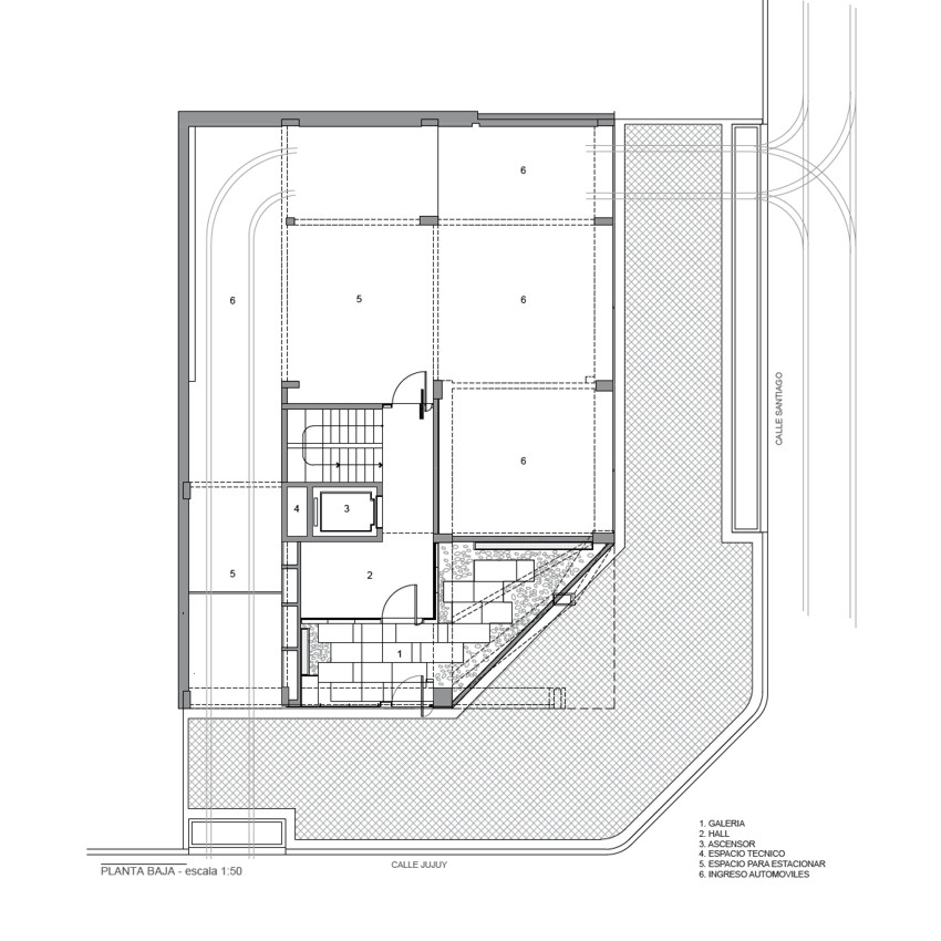
Jujuy Redux es un edificio de departamentos de mediana altura localizado en Rosario, Argentina. Siendo nuestro segundo encargo para un edificio residencial (localizado también sobre calle Jujuy), el proyecto presentó la posibilidad de repensar el problema de vivienda colectivade carácter urbano y a la vez evolucionar algunas de las ideas comenzadas en el primer proyecto. El edificio consiste de trece pequeños semipisos y un dúplex, todos con orientación frente/contra-frente. A nivel de calle el edificio cuenta con estacionamiento para 10 vehículos, mientras que en la terraza se encuentran una serie de espacios comunes semi-cubiertos, un solárium y un parrillero.
Ocupando un lote en esquina, la nueva construcción tiene como meta revitalizar el tradicional barrio de “Pichincha”. Ubicado próximo al centro de la ciudad, al tradicional Bv. Oroño y a la costa del Rio de Paraná, Pichincha goza de anchas calles, abundante vegetación y un patrimonio urbano mixto de baja densidad, ofreciendo de esta manera un entorno ideal para familias jóvenes y estudiantes universitarios. Todas estas características continúan alimentando la demanda de intervenciones edilicias de mediana altura en este renovado distrito de la ciudad.
Jujuy Redux propone una masa delineada que opera de manera fluida entre la escala del volumen edilicio y la de cada departamento. Esta dualidad permite repensar la envolvente del edificio en íntima relación con su masa, cuestionando así estrictas nociones de escala muchas veces sobrentendidas en edificios de media altura, en donde los juegos formales se dividen entre expresar la piel separada de las unidades habitacionales, o expresar las unidades mismas.
La transición de masa a volúmenes proyectantes y de estos últimos a superficies, induce una distorsión físicay visual desde la calle. De esta manera, la apariencia robustade la masa edilicia se desmaterializa hacia la esquina, generando así la posibilidad de amplias vistas hacia la calle desde los espacios interiores más cotidianos de los departamentos, como el living y el estar.

Transiciones à la carte: Los Balcones Hiperbólicos
El balcón, elemento funcional y culturalmente ineludible en edificios residenciales en Latino América, se ha convertido en objeto de meras especulaciones formales, muchas veces descuidando problemas de integración y coherencia espacial, y aun peor, desconectando el diseño de estos espacios de cuestiones sociales o de sus futuros ocupantes. Nuestro interés, desde un comienzo, fue crear una estrategia formal, espacial y material innovadora para el diseño de los balcones, prestando atención a cuestiones de identidad edilicia como también de uso social y cotidiano .
Aunque reconocemos las condiciones culturales asociadas con balcones en edificios de vivienda, proponemos que dicha condición cultural no está aun codificada con una tipología arquitectónica precisa. De esta manera, nuestro diseño tiene reminiscencias tanto del típico balcón corrido como de bay-windows poligonales. Mientras que este último se desempeña estrictamente como espacio interior, los balcones de Jujuy Redux actúan incremental y direccionalmente ya que se abren hacia la esquina conformando espacios decididamente abiertos que enfatizan vistas diagonales; y espacios más íntimos,, protegidos de las inclemencias climáticas.
El proyecto fue construido casi en su totalidad en hormigón armado –luego pintado en color blanco, mientras que los espacios de los balcones se revisten completamente en cerámico veneciano de color gris -combinación que produce un sentido de contraste tanto cromático como espacial entre la piel blanca exterior, y la gris, intermedia. Esta condición acentúa el efecto de envolvente espacial sobre los espacios exteriores de cada departamento, diversificando así su modo de ocupación a través de una clara secuencia entre espacios públicos y privados.
Decididamente formales y espacialmente ambiguos, los balcones hiperbólicos en Jujuy Redux son concebidos como piezas de diversidad escalar, incorporando articulaciones como aperturas, pliegues, agujeros, aleros, parasoles, iluminación lineal mediante LED, continuidad material entre pisos y paredes, y hasta un banco -lugar perfecto para el ocio, pequeñas reuniones, o para alojar plantas.

A Nivel Peatonal: La Esquina Abierta
A nivel de la calle, una esquina en doble altura y libre de columnas se resuelve a través de una ramificación estructural que continua la deviaciones diagonales producidas por los balcones. Esta ochava en voladizo da lugar a una discreta entrada principal por calle Jujuy, seguida por una secuencia de espacios que incluye un porche cerrado y un hall principal unido por una gran abertura vidriada en doble altura, y el vestíbulo del ascensor, todos revestidos en mármol de Carrara.

Por encima: LaTerraza Extensa
La secuencia de deviaciones diagonales se amplifica formal y espacialmenteen el nivel del techo donde el edificio se retranquea para acomodar un conjunto de espacios técnicos, un dúplex en esquina y una amplia terraza común con solárium, áreas semi-cubiertas y un parrillero; todos ellos con atractivas vistas hacia el centro de la ciudad y las costas del Paraná. De esta manera, el edificio se abre gradualmente a la vez que se aligera su masa contorsionada, y se “desflecan” sus superficies produciendo pliegues que incluyen un bris-soleil como remate, que enmarca y contiene la zona mas abierta de la terraza.
Articulación: Masa y Agujeros
Siguiendo el sistema geométrico de los balcones, perforaciones triangulares a lo largo de la piel de hormigón establecen una serie de espacios intermedios o umbrales, proporcionando así abundante luz y ventilación natural. Al bifurcarse, la piel del edificio se vuelve porosa, creando así una técnica de control climático pasiva, que combinada con la ventilación cruzada de cada departamento ayuda a producir un sistema de enfriamiento natural simple pero efectivo. De un modo similar, la ochava y la entrada principal del edificio son perforadas en gran cantidad permitiendo que el porche del edificio reciba luz tamizada del Este, durante la mañana y ofreciendo a transeúntes curiosos, destellos del interior del edificio.
Materia y Pintura: El Hormigón Blanco
Paredes blancas han sido tradicionalmente asociadas con la extracción de detalles y ornamentación, resultando a menudo en una materialidad anémica, como el evidente White wash manifiesto en muchos edificios del siglo diecinueve. Alternativamente, Jujuy Redux explora un diferente tipo de blanco: uno que privilegia la plasticidad general por encima de la materialidad local pero que reconoce y articula diferencias, aceptando discontinuidades y produciendo alto o bajo contraste para exaltar según el caso profundidad o chatura.
Premios:
En 2012 Jujuy Redux fue galardonado con el ‘Merit Award’ por AIA I Los Angeles Design Awards; y con una ‘Mención Honorable’, por Architect Magazine Annual Design Review.
‘Jujuy Redux’ es el único proyecto Argentino finalista del ‘Architizer A+ Awards’ en la categoría ‘Edificios Residenciales de Mediana Altura‘, donde el público en general puede votar sus proyectos favoritos hasta el 21 de marzo de 2014
Imágenes gentileza > PATTERNS + MSA – Maxi Spina Architects / Fotógrafo: Gustavo Frittegotto
Ficha técnica:
Tipología: Propiedad Horizontal
Localización: Rosario, Argentina
Fecha: 2008 – 2012
Superficie: 1350 m2
Cliente: Privado
Arquitectos: PATTERNS + MSA / Marcelo Spina, Georgina Huljichy, Maximiliano Spina
Equipo de Diseño: Rick Michod, Nathaniel Moore, GiulianaHaro, Daniele Profeta, Mike Wang
Ingeniería: Estudio José Orengo
Equipamiento: Forcen Design + Nosten
Fotografía: Gustavo Frittegotto
Links >
PATTERNS
MSA – Maxi Spina Architects
pubblicato in data: 16/03/2014
































